Постановление Комитета по охране объектов культурного наследия Ростовской области от 03.12.2019 № 20/01-01/1616
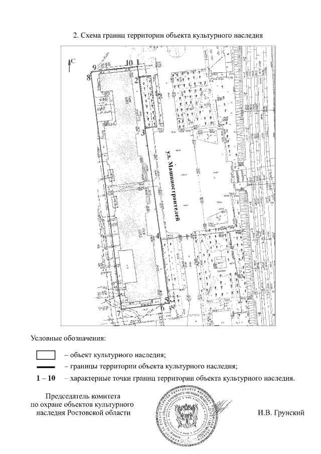
"Об утверждении границ территории объекта культурного наследия регионального значения "З/у НЭВЗа. На заводе работал Герой СССР И.И.Клещев" (уточненное наименование: "Здание Новочеркасского паровозостроительного завода, в котором работал Герой Советского Союза И.И. Клещев")"
"Об утверждении границ территории объекта культурного наследия регионального значения "З/у НЭВЗа. На заводе работал Герой СССР И.И.Клещев" (уточненное наименование: "Здание Новочеркасского паровозостроительного завода, в котором работал Герой Советского Союза И.И. Клещев")"
Номер опубликования: 6101201912050081
Дата опубликования:
05.12.2019
