Официальное опубликование правовых актов
ОФИЦИАЛЬНОЕ ОПУБЛИКОВАНИЕ
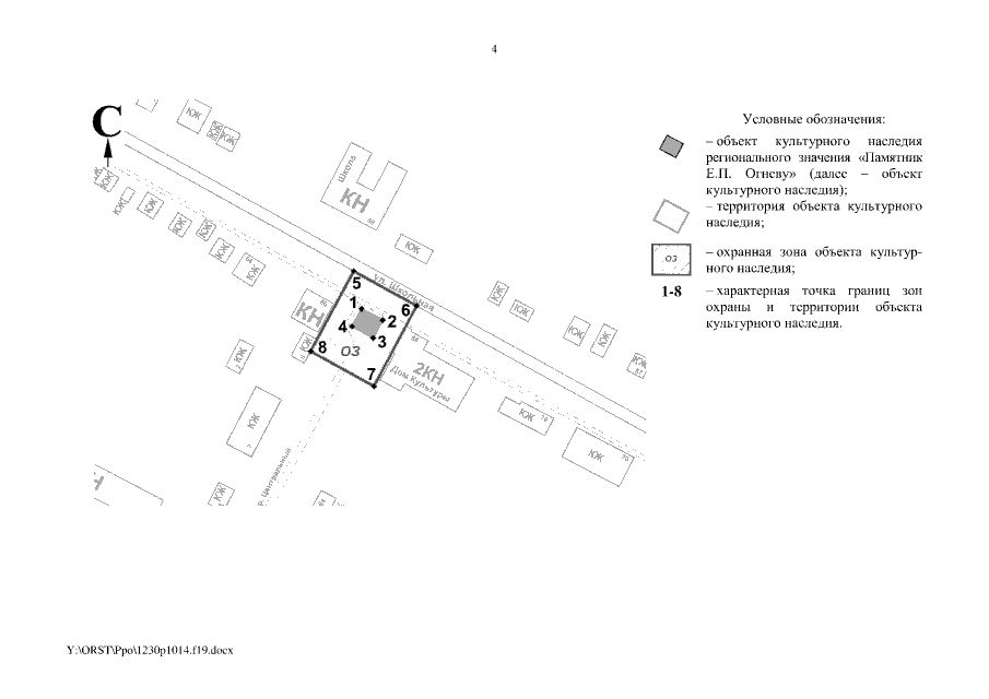
Постановление Правительства Ростовской области от 30.12.2019 № 1014
"Об установлении зон охраны объекта культурного наследия регионального значения "Памятник Е.П. Огневу" и утверждении требований к градостроительным регламентам в границах территорий данных зон"
Номер опубликования: 6100201912310033
Дата опубликования: 31.12.2019
Страница №4 из 6:
Увеличить