Постановление Псковского областного Собрания депутатов от 11.07.2017 № 313
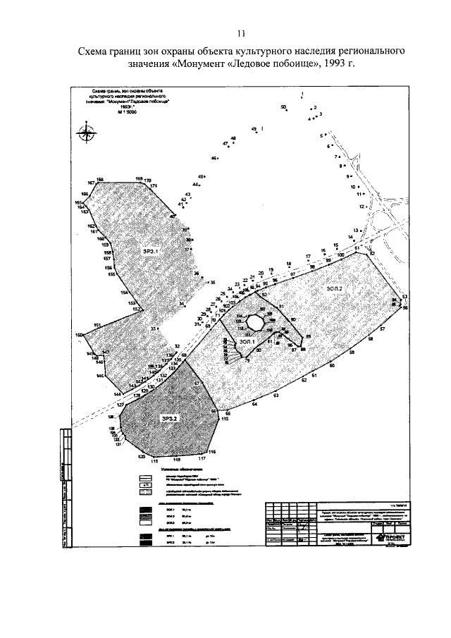
"Об утверждении границ зон охраны, режимов использования земель и требований к градостроительным регламентам в границах зон охраны объекта культурного наследия регионального значения "Монумент "Ледовое побоище", 1993 г."
"Об утверждении границ зон охраны, режимов использования земель и требований к градостроительным регламентам в границах зон охраны объекта культурного наследия регионального значения "Монумент "Ледовое побоище", 1993 г."
Номер опубликования: 6000201707120004
Дата опубликования:
12.07.2017
