Официальное опубликование правовых актов
ОФИЦИАЛЬНОЕ ОПУБЛИКОВАНИЕ
Приказ Министерства градостроительства и архитектуры Пензенской области от 16.02.2026 № 23-86
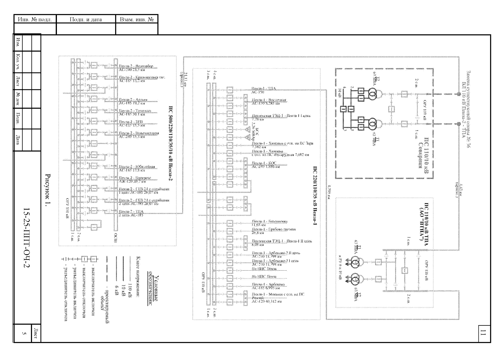
"Об утверждении документации по планировке территории линейного объекта: "Строительство ПС 110 кВ Заря – 2 (ОРУ 110 кВ, ОПУ, ЗРУ – 10 кВ, РЗА, ТМ, АИИС КУЭ, связь, СДТУ, трансформаторная мощность 126 МВА)"
(Зарегистрирован 16.02.2026 № 23-86)
Номер опубликования: 5801202602190001
Дата опубликования: 19.02.2026
Страница №15 из 235:
Увеличить