Официальное опубликование правовых актов
ОФИЦИАЛЬНОЕ ОПУБЛИКОВАНИЕ
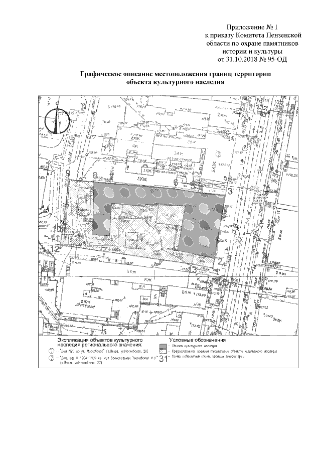
Приказ Комитета Пензенской области по охране памятников истории и культуры от 31.10.2018 № 95-ОД
"Об утверждении границ и режима использования территории объекта культурного наследия регионального значения "Дом № 20 по ул. Московской", расположенного по адресу: Пензенская область, г. Пенза, ул. Московская, д. 20"
Номер опубликования: 5801201811020010
Дата опубликования: 02.11.2018
Страница №2 из 4:
Увеличить