Официальное опубликование правовых актов
ОФИЦИАЛЬНОЕ ОПУБЛИКОВАНИЕ
Постановление Правительства Пензенской области от 26.07.2018 № 376-пП
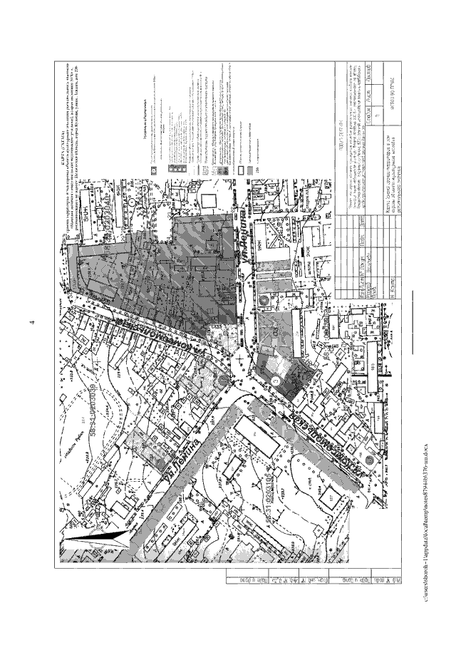
"Об утверждении границ зон охраны, режимов использования земель и требований к градостроительным регламентам в границах данных зон объекта культурного наследия регионального значения "Бывшая женская гимназия (ныне - медицинское училище)" (Пензенская область, г. Кузнецк, ул. Ленина, 236)"
Номер опубликования: 5800201807260001
Дата опубликования: 26.07.2018
Страница №6 из 10:
Увеличить