Постановление Правительства Орловской области от 17.03.2020 № 150
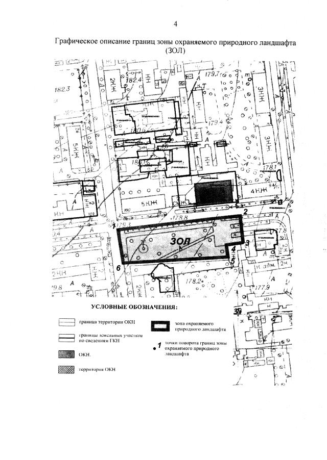
"Об установлении зон охраны объекта культурного наследия регионального значения "Дом жилой", XIX в., расположенного по адресу: г. Ливны, ул. Дзержинского, д. 94"
"Об установлении зон охраны объекта культурного наследия регионального значения "Дом жилой", XIX в., расположенного по адресу: г. Ливны, ул. Дзержинского, д. 94"
Номер опубликования: 5700202003200004
Дата опубликования:
20.03.2020
