Приказ Инспекции государственной охраны объектов культурного наследия Оренбургской области от 19.11.2025 № 01-33-164
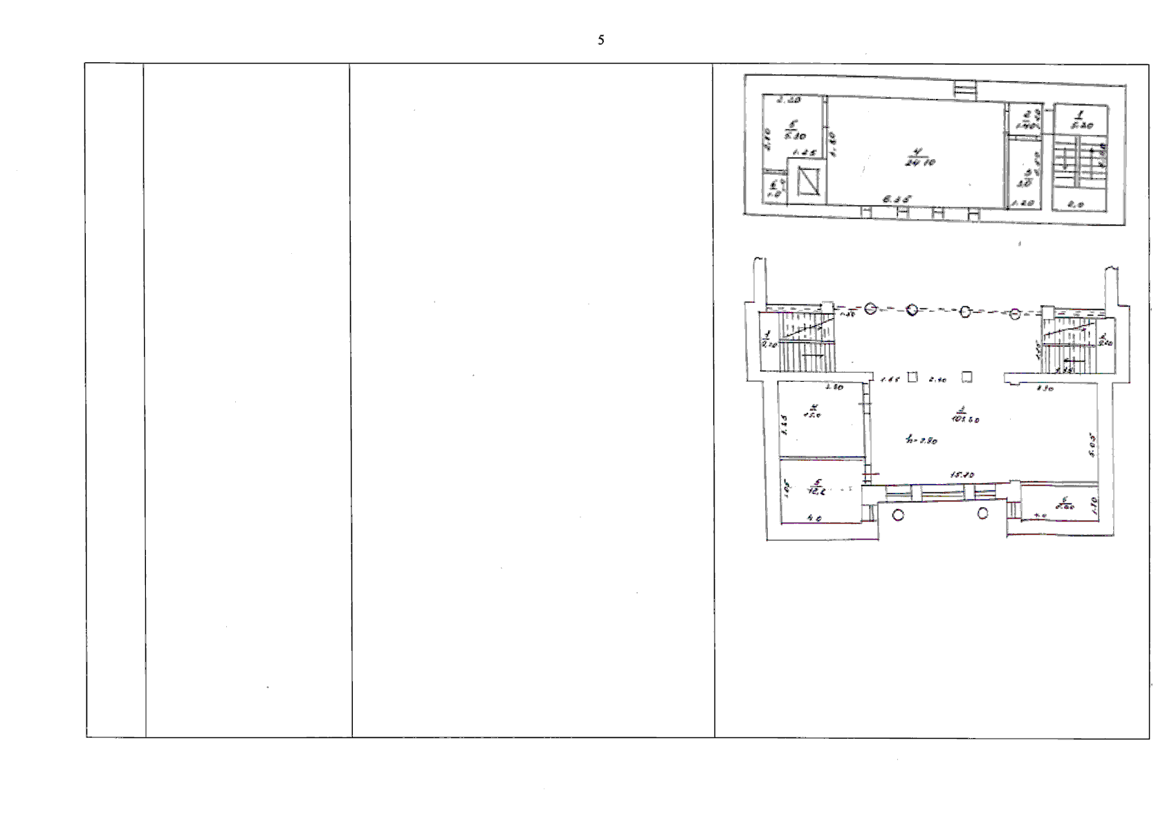
"О включении выявленного объекта культурного наследия в единый государственный реестр объектов культурного наследия (памятников истории и культуры) народов Российской Федерации в качестве объекта культурного наследия регионального значения (вид – памятник) "Первый широкоэкранный кинотеатр Оренбурга "Железнодорожник", 1958 год (Оренбургская область, город Оренбург, улица Культурная, дом 1а), об утверждении предмета охраны, границ и режима использования территории объекта культурного наследия"
(Зарегистрирован 19.11.2025 № 0156/25/22)
"О включении выявленного объекта культурного наследия в единый государственный реестр объектов культурного наследия (памятников истории и культуры) народов Российской Федерации в качестве объекта культурного наследия регионального значения (вид – памятник) "Первый широкоэкранный кинотеатр Оренбурга "Железнодорожник", 1958 год (Оренбургская область, город Оренбург, улица Культурная, дом 1а), об утверждении предмета охраны, границ и режима использования территории объекта культурного наследия"
(Зарегистрирован 19.11.2025 № 0156/25/22)
Номер опубликования: 5601202511190009
Дата опубликования:
19.11.2025
