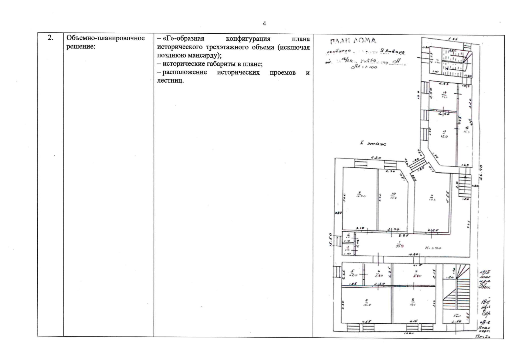
Приказ Инспекции государственной охраны объектов культурного наследия Оренбургской области от 19.11.2025 № 01-33-162
"О включении выявленного объекта культурного наследия в единый государственный реестр объектов культурного наследия (памятников истории и культуры) народов Российской Федерации в качестве объекта культурного наследия регионального значения (вид – памятник) "Дом "Санкт-Петербургской компании "Надежда" для морского, речного и сухопутного страхования, транспортирования кладей и страхования от огня имуществ", рубеж XIX-XX веков (Оренбургская область, город Оренбург, улица 9 Января, дом 56, Литера А), об утверждении предмета охраны, границ и режима использования территории объекта культурного наследия"
(Зарегистрирован 19.11.2025 № 0154/25/22)
"О включении выявленного объекта культурного наследия в единый государственный реестр объектов культурного наследия (памятников истории и культуры) народов Российской Федерации в качестве объекта культурного наследия регионального значения (вид – памятник) "Дом "Санкт-Петербургской компании "Надежда" для морского, речного и сухопутного страхования, транспортирования кладей и страхования от огня имуществ", рубеж XIX-XX веков (Оренбургская область, город Оренбург, улица 9 Января, дом 56, Литера А), об утверждении предмета охраны, границ и режима использования территории объекта культурного наследия"
(Зарегистрирован 19.11.2025 № 0154/25/22)
Номер опубликования: 5601202511190001
Дата опубликования:
19.11.2025
