Распоряжение Министерства архитектуры и пространственно-градостроительного развития Оренбургской области от 05.11.2024 № 26-р
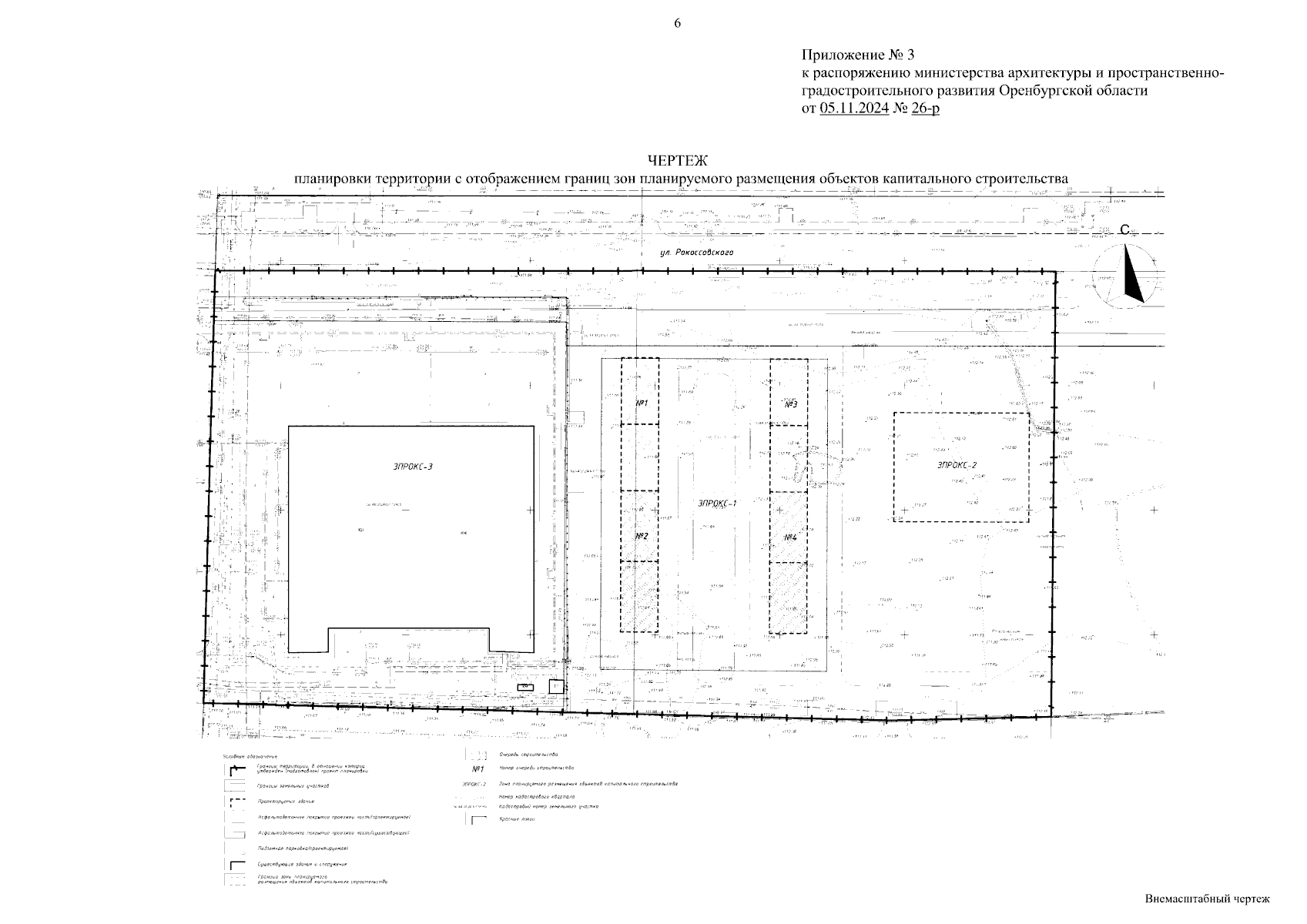
"Об утверждении проекта планировки территории, ограниченной ул. Рокоссовского, ул. Терешковой и земельными участками с кадастровыми номерами 56:44:0124001:135, 56:44:0124001:5988, 56:44:0124001:5991"
(Зарегистрирован 05.11.2024 № 0093/2024/02)
"Об утверждении проекта планировки территории, ограниченной ул. Рокоссовского, ул. Терешковой и земельными участками с кадастровыми номерами 56:44:0124001:135, 56:44:0124001:5988, 56:44:0124001:5991"
(Зарегистрирован 05.11.2024 № 0093/2024/02)
Номер опубликования: 5601202411080003
Дата опубликования:
08.11.2024
