Официальное опубликование правовых актов
ОФИЦИАЛЬНОЕ ОПУБЛИКОВАНИЕ
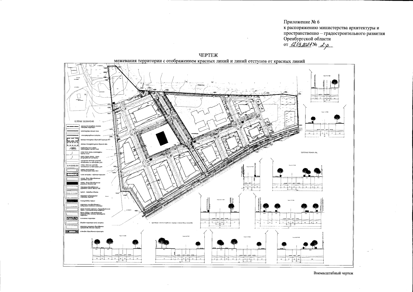
Распоряжение Министерства архитектуры и пространственно-градостроительного развития Оренбургской области от 12.03.2024 № 2-р
"Об утверждении проекта планировки и проекта межевания территории "Комплексная жилая застройка, расположенная в границах земельного участка с кадастровым номером 56:44:0201005:3912"
(Зарегистрирован 12.03.2024 № 0027/2024/02)
Номер опубликования: 5601202403200001
Дата опубликования: 20.03.2024
Страница №24 из 25:
Увеличить