Официальное опубликование правовых актов
ОФИЦИАЛЬНОЕ ОПУБЛИКОВАНИЕ
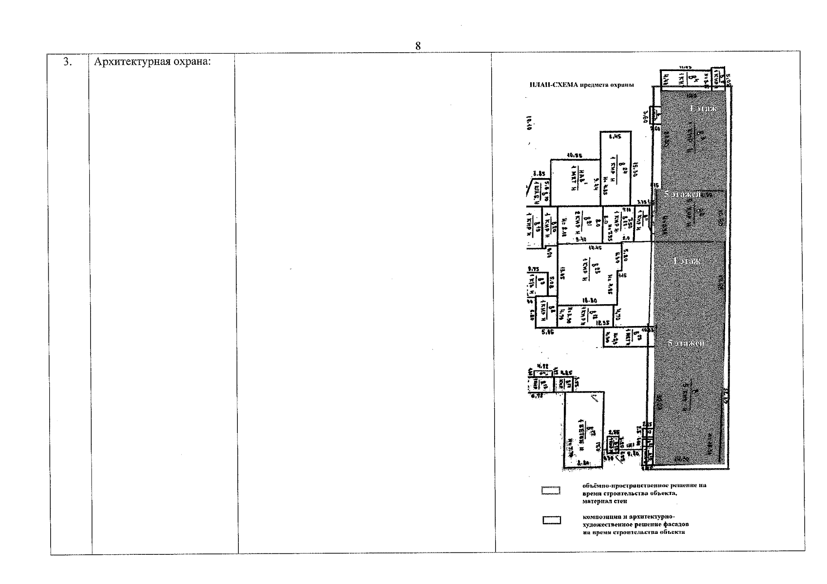
Приказ Инспекции государственной охраны объектов культурного наследия Оренбургской области от 23.10.2023 № 01-08-613
"О включении выявленного объекта культурного наследия в единый государственный реестр объектов культурного наследия (памятников истории и культуры) народов Российской Федерации в качестве объекта культурного наследия регионального значения (вид – памятник) "Паровая мельница Н.В. Путолова", 1902 г., (Оренбургская область, г. Оренбург, пер. Селивановский, д. 58), об утверждении предметов охраны, границ и режима использования территории объекта культурного наследия"
(Зарегистрирован 23.10.2023 № 0385/2023/22)
Номер опубликования: 5601202310240003
Дата опубликования: 24.10.2023
Страница №8 из 22:
Увеличить