Приказ Инспекции государственной охраны объектов культурного наследия Оренбургской области от 12.10.2023 № 01-08-573
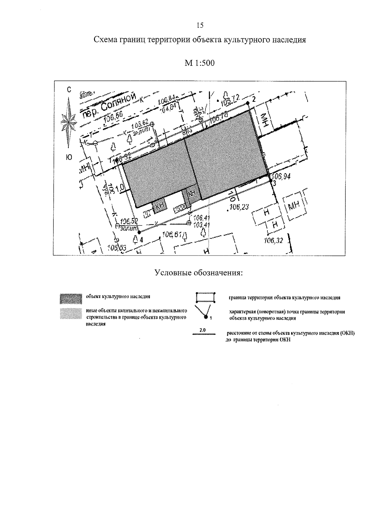
"О включении выявленного объекта культурного наследия в единый государственный реестр объектов культурного наследия (памятников истории и культуры) народов Российской Федерации в качестве объекта культурного наследия регионального значения (вид – памятник) "Дом мусульманского общества города Оренбурга и гостиницы "Урал", 2-я половина ХIХ века, (Оренбургская область, г. Оренбург, пер. Соляной, д. 5), об утверждении предметов охраны, границ и режима использования территории объекта культурного наследия"
(Зарегистрирован 12.10.2023 № 0360/2023/22)
"О включении выявленного объекта культурного наследия в единый государственный реестр объектов культурного наследия (памятников истории и культуры) народов Российской Федерации в качестве объекта культурного наследия регионального значения (вид – памятник) "Дом мусульманского общества города Оренбурга и гостиницы "Урал", 2-я половина ХIХ века, (Оренбургская область, г. Оренбург, пер. Соляной, д. 5), об утверждении предметов охраны, границ и режима использования территории объекта культурного наследия"
(Зарегистрирован 12.10.2023 № 0360/2023/22)
Номер опубликования: 5601202310130020
Дата опубликования:
13.10.2023
