Официальное опубликование правовых актов
ОФИЦИАЛЬНОЕ ОПУБЛИКОВАНИЕ
Приказ Инспекции государственной охраны объектов культурного наследия Оренбургской области от 03.06.2022 № 01-08-188
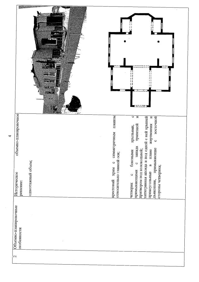
"Об утверждении предмета охраны, границ и режима использования территории объекта культурного наследия регионального значения "Церковь Покрова", 2-ая половина XIX в."
Номер опубликования: 5601202206060006
Дата опубликования: 06.06.2022
Страница №4 из 11:
Увеличить