Официальное опубликование правовых актов
ОФИЦИАЛЬНОЕ ОПУБЛИКОВАНИЕ
Приказ Министерства культуры Омской области от 30.05.2023 № 48
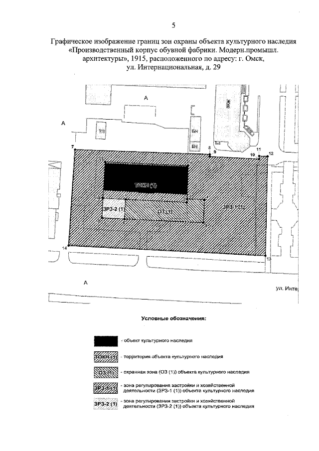
"Об установлении зон охраны объекта культурного наследия (памятника истории и культуры) народов Российской Федерации регионального значения и утверждении требований к градостроительным регламентам в границах данных зон"
(Зарегистрирован 30.05.2023 № 900)
Номер опубликования: 5501202305310013
Дата опубликования: 31.05.2023
Страница №7 из 12:
Увеличить