Официальное опубликование правовых актов
ОФИЦИАЛЬНОЕ ОПУБЛИКОВАНИЕ
Приказ Министерства строительства, транспорта и дорожного хозяйства Омской области от 21.02.2022 № 11-п
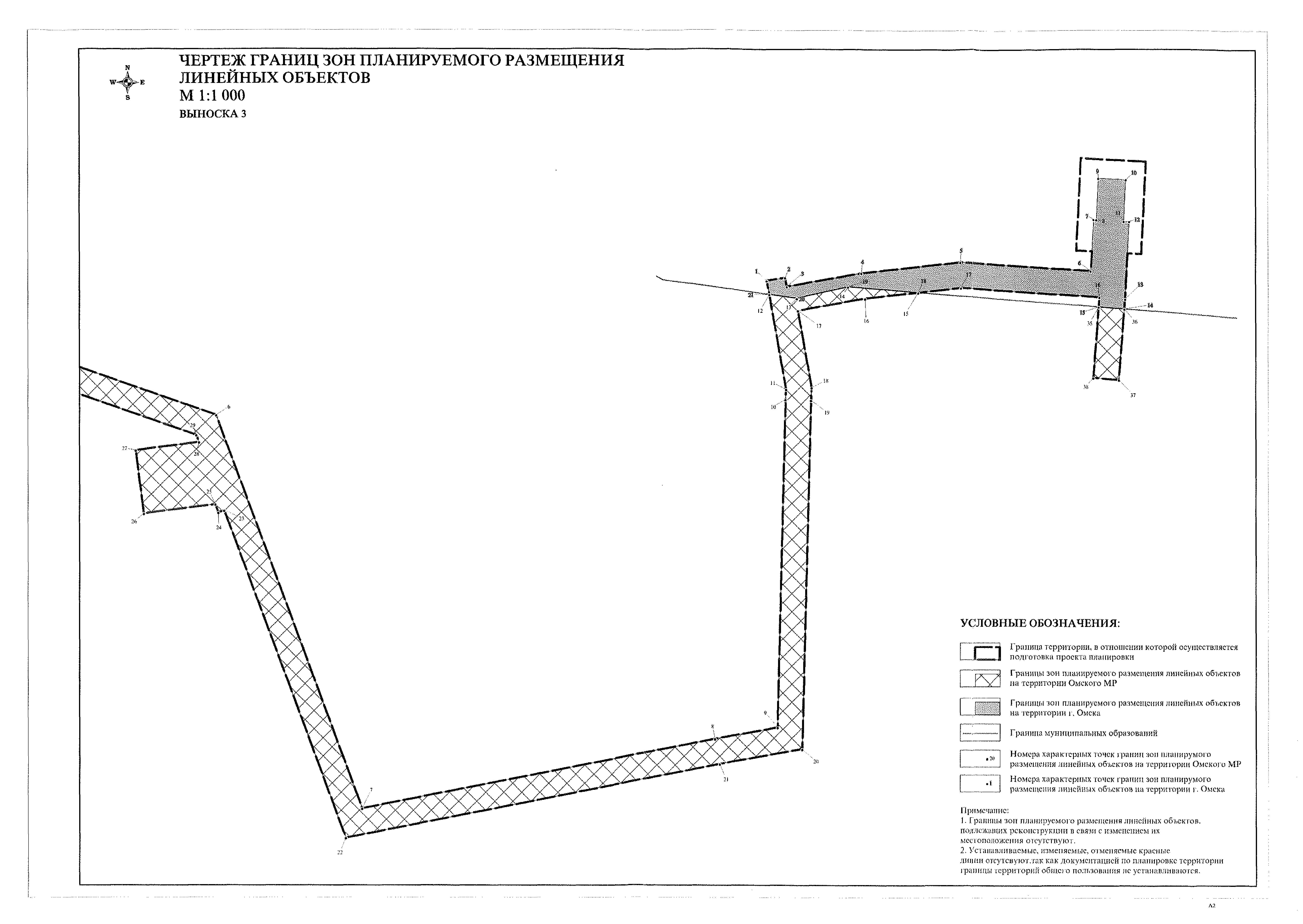
"Об утверждении проекта планировки, проекта межевания территории линейного объекта "Газопровод-связка от перспективной ГРС-29 до существующих сетей газораспределения г. Омска со строительством ПРГ 3"
Номер опубликования: 5501202202250014
Дата опубликования: 25.02.2022
Страница №4 из 44: