Официальное опубликование правовых актов
ОФИЦИАЛЬНОЕ ОПУБЛИКОВАНИЕ
Приказ Министерства культуры Омской области от 08.02.2021 № 7
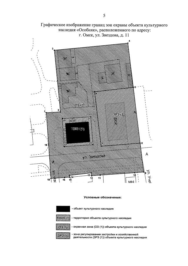
"Об установлении зон охраны объектов культурного наследия (памятников истории и культуры) народов Российской Федерации регионального значения и утверждении требований к градостроительным регламентам в границах данных зон"
Номер опубликования: 5501202102150001
Дата опубликования: 15.02.2021
Страница №6 из 13:
Увеличить