Официальное опубликование правовых актов
ОФИЦИАЛЬНОЕ ОПУБЛИКОВАНИЕ
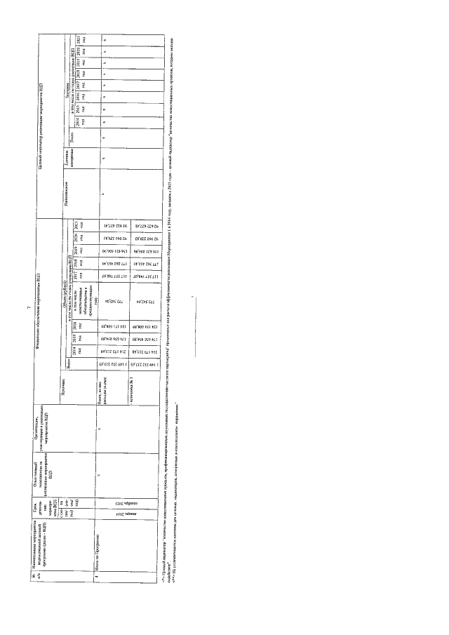
Приказ Министерства экономики Омской области от 18.03.2019 № 12
"О внесении изменений в приказ Министерства экономики Омской области от 25 октября 2013 года № 42"
Номер опубликования: 5501201903180001
Дата опубликования: 18.03.2019
Страница №8 из 8:
Увеличить