Официальное опубликование правовых актов
ОФИЦИАЛЬНОЕ ОПУБЛИКОВАНИЕ
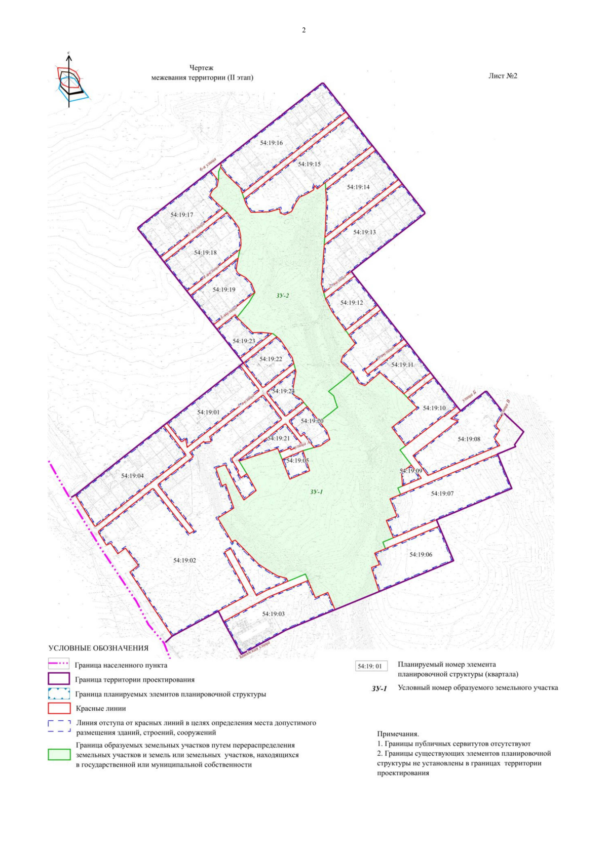
Приказ Министерства строительства Новосибирской области от 24.12.2025 № 196-НПА
"Об утверждении проекта планировки территории для размещения улично-дорожной сети и спортивного объекта в границах Каменского сельсовета Новосибирского района Новосибирской области и проекта межевания территории в его составе"
(Зарегистрирован 24.12.2025 № 196-НПА)
Номер опубликования: 5401202512250003
Дата опубликования: 25.12.2025
Страница №50 из 72:
Увеличить