Приказ Министерства градостроительной деятельности и развития агломераций Нижегородской области от 29.09.2025 № 07-02-03/92
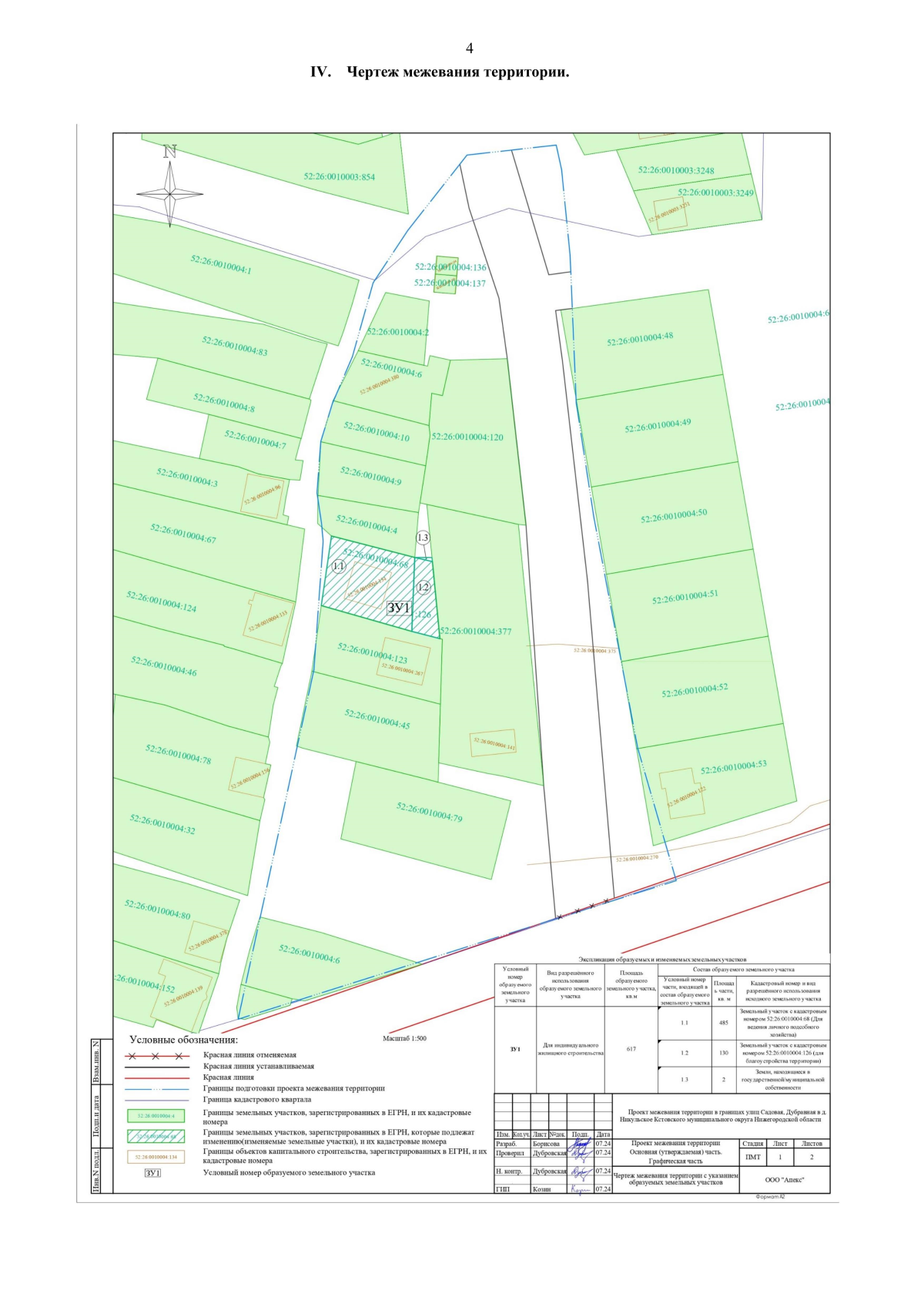
"Об утверждении проекта межевания территории в границах улиц Садовая, Дубравная в д. Никульское Кстовского района городского округа город Нижний Новгород Нижегородской области"
(Зарегистрирован 20.10.2025 № 28830-330-007-02-03/92)
"Об утверждении проекта межевания территории в границах улиц Садовая, Дубравная в д. Никульское Кстовского района городского округа город Нижний Новгород Нижегородской области"
(Зарегистрирован 20.10.2025 № 28830-330-007-02-03/92)
Номер опубликования: 5201202510220002
Дата опубликования:
22.10.2025
