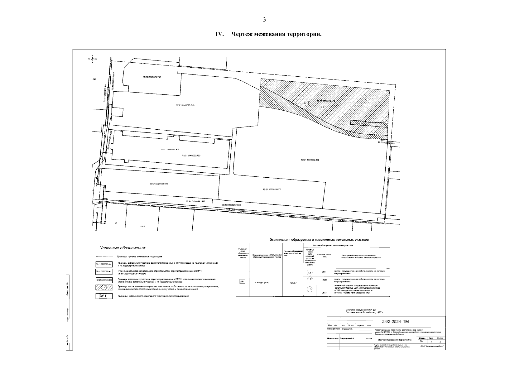
Приказ Министерства градостроительной деятельности и развития агломераций Нижегородской области от 06.06.2025 № 07-02-03/53
"Об утверждении проекта межевания территории, расположенной в районе здания № 147/1000 в Северо-Западном промрайоне в городском округе город Дзержинск Нижегородской области"
(Зарегистрирован 16.06.2025 № 28265-330-007-02-03/53)
"Об утверждении проекта межевания территории, расположенной в районе здания № 147/1000 в Северо-Западном промрайоне в городском округе город Дзержинск Нижегородской области"
(Зарегистрирован 16.06.2025 № 28265-330-007-02-03/53)
Номер опубликования: 5201202506180006
Дата опубликования:
18.06.2025
