Официальное опубликование правовых актов
ОФИЦИАЛЬНОЕ ОПУБЛИКОВАНИЕ
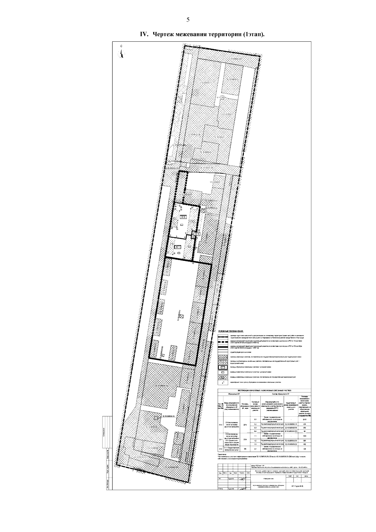
Приказ Министерства градостроительной деятельности и развития агломераций Нижегородской области от 28.05.2025 № 07-02-03/48
"Об утверждении изменений в документацию по планировке территории - "Проект застройки и межевания территории юго- западной части микрорайона "Караваиха" в Приокском районе"
(Зарегистрирован 16.06.2025 № 28262-330-007-02-03/48)
Номер опубликования: 5201202506180004
Дата опубликования: 18.06.2025
Страница №7 из 12:
Увеличить