Приказ Министерства градостроительной деятельности и развития агломераций Нижегородской области от 06.05.2025 № 07-02-03/47
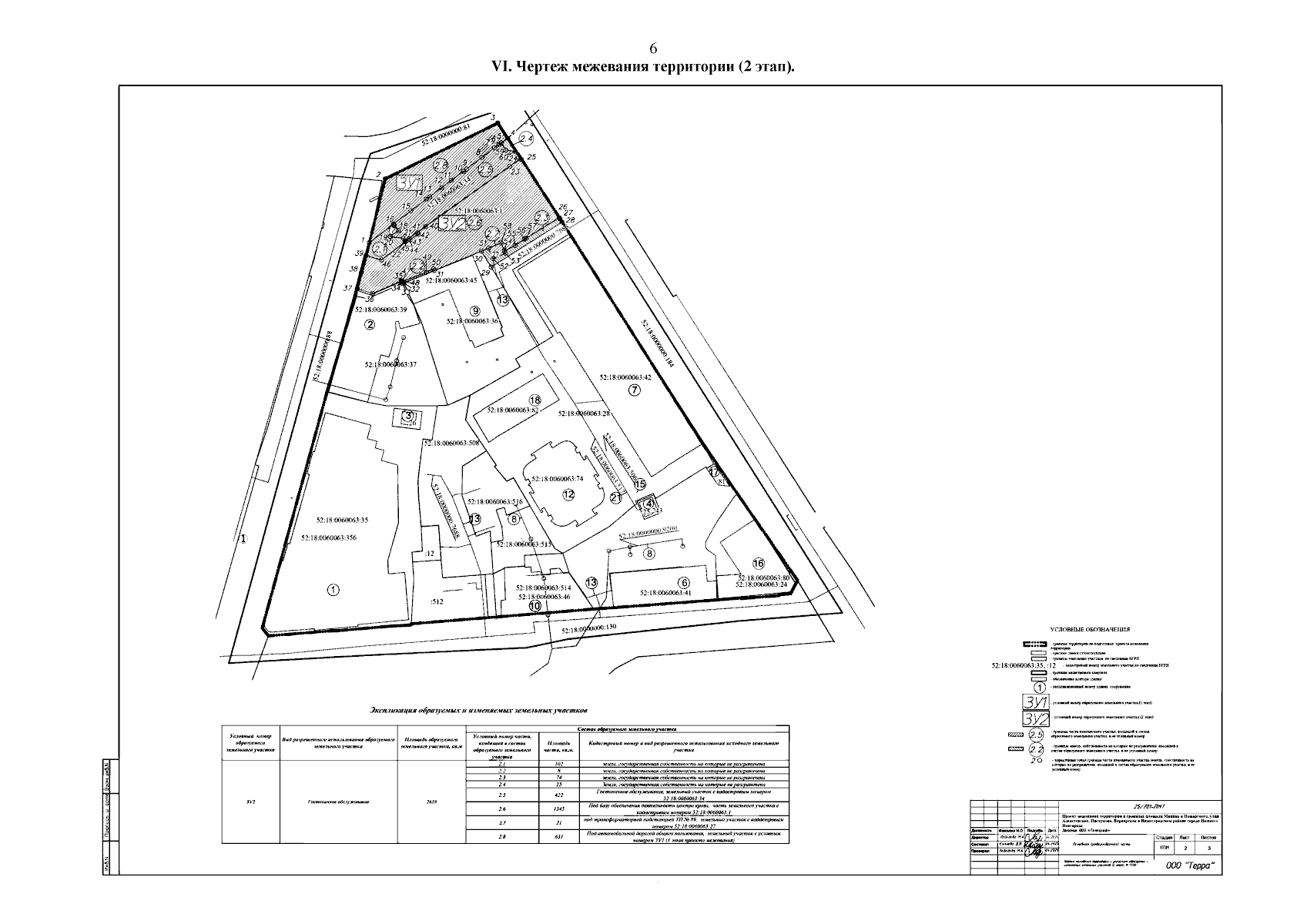
"Об утверждении проекта межевания территории в границах площади Минина и Пожарского, улиц Алексеевская, Пискунова, Варварская в Нижегородском районе города Нижнего Новгорода"
(Зарегистрирован 27.05.2025 № 28159-330-007-02-03/47)
"Об утверждении проекта межевания территории в границах площади Минина и Пожарского, улиц Алексеевская, Пискунова, Варварская в Нижегородском районе города Нижнего Новгорода"
(Зарегистрирован 27.05.2025 № 28159-330-007-02-03/47)
Номер опубликования: 5201202505290004
Дата опубликования:
29.05.2025
