Официальное опубликование правовых актов
ОФИЦИАЛЬНОЕ ОПУБЛИКОВАНИЕ
Приказ Министерства градостроительной деятельности и развития агломераций Нижегородской области от 01.04.2025 № 07-02-03/36
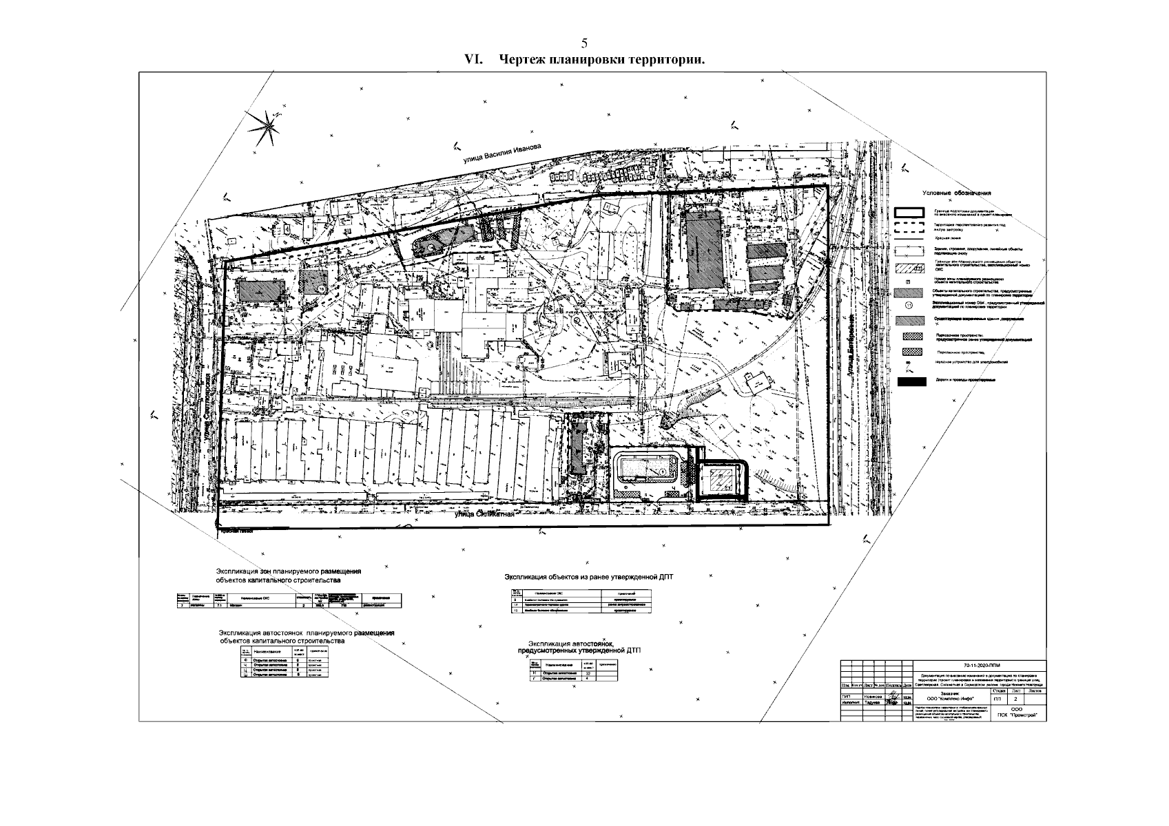
"Об утверждении документации по внесению изменений в документацию по планировке территории (проект планировки и межевания территории) в границах улиц Светлоярская, Силикатная в Сормовском районе города Нижнего Новгорода"
(Зарегистрирован 14.04.2025 № 27983-330-007-02-03/36)
Номер опубликования: 5201202504170004
Дата опубликования: 17.04.2025
Страница №7 из 9:
Увеличить