Официальное опубликование правовых актов
ОФИЦИАЛЬНОЕ ОПУБЛИКОВАНИЕ
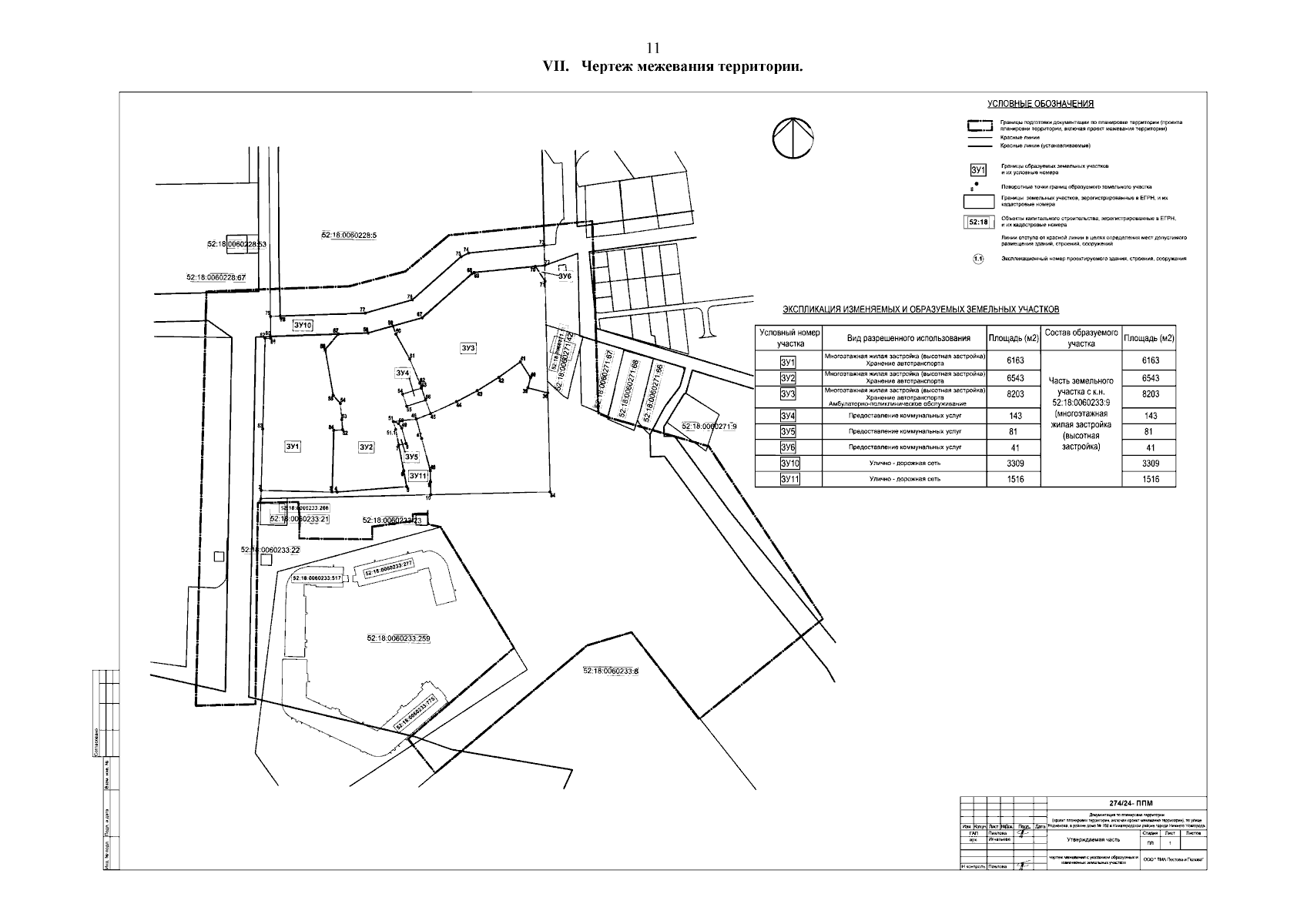
Приказ Министерства градостроительной деятельности и развития агломераций Нижегородской области от 28.03.2025 № 07-02-03/34
"Об утверждении документации по планировке территории (проекта планировки территории, включая проект межевания территории) по улице Родионова, в районе дома № 198 в Нижегородском районе города Нижнего Новгорода"
(Зарегистрирован 07.04.2025 № 27927-330-007-02-03/34)
Номер опубликования: 5201202504100003
Дата опубликования: 10.04.2025
Страница №13 из 14:
Увеличить