Официальное опубликование правовых актов
ОФИЦИАЛЬНОЕ ОПУБЛИКОВАНИЕ
Приказ Министерства градостроительной деятельности и развития агломераций Нижегородской области от 24.03.2025 № 07-02-03/31
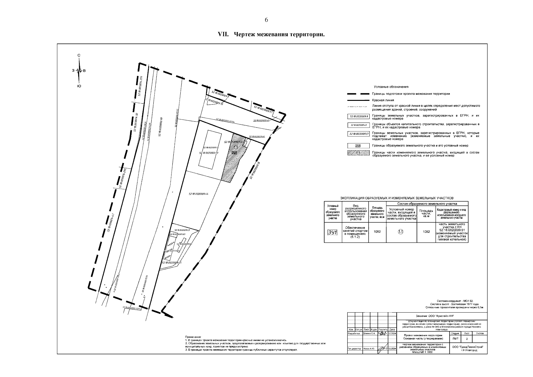
"Об утверждении документации по планировке территории (проекта планировки территории, включая проект межевания территории), расположенной по улице Коминтерна, у дома № 34Б в Московском районе города Нижнего Новгорода"
(Зарегистрирован 07.04.2025 № 27925-330-007-02-03/31)
Номер опубликования: 5201202504100001
Дата опубликования: 10.04.2025
Страница №8 из 9:
Увеличить