Официальное опубликование правовых актов
ОФИЦИАЛЬНОЕ ОПУБЛИКОВАНИЕ
Приказ Министерства градостроительной деятельности и развития агломераций Нижегородской области от 06.03.2025 № 07-02-03/24
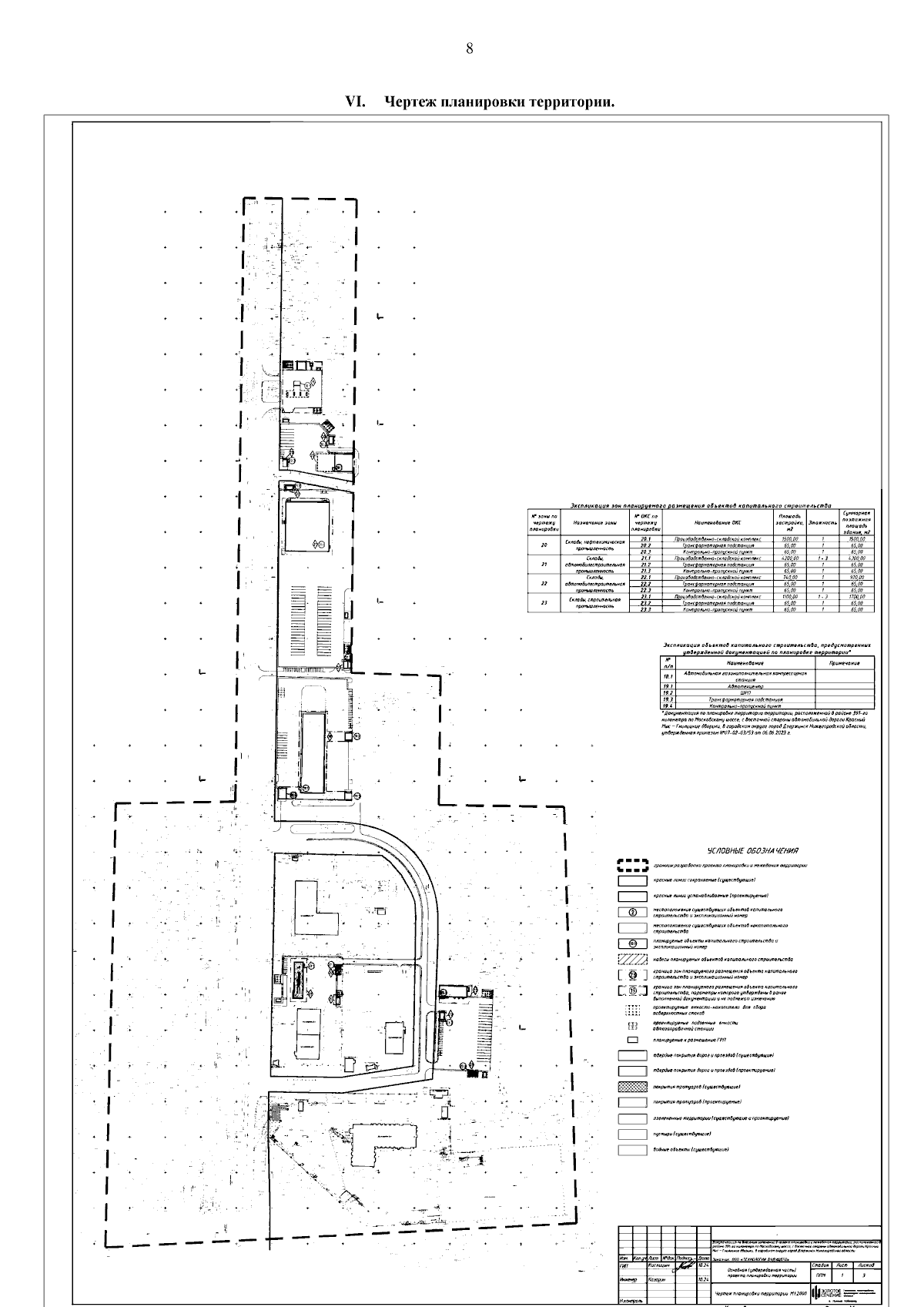
"Об утверждении документации по внесению изменений в проект планировки и межевания территории, расположенной в районе 391-го километра по Московскому шоссе, с восточной стороны автомобильной дороги Красный Мыс - Гнилицкие дворики, в городском округе город Дзержинск Нижегородской области"
(Зарегистрирован 24.03.2025 № 27846-330-007-02-03/24)
Номер опубликования: 5201202503270004
Дата опубликования: 27.03.2025
Страница №10 из 12:
Увеличить