Официальное опубликование правовых актов
ОФИЦИАЛЬНОЕ ОПУБЛИКОВАНИЕ
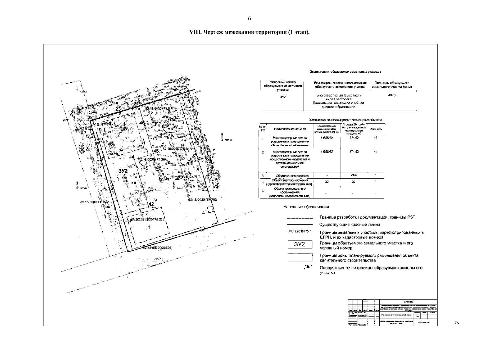
Приказ Министерства градостроительной деятельности и развития агломераций Нижегородской области от 24.02.2025 № 07-02-03/17
"Об утверждении изменений в документацию по планировке территории (проект планировки территории, включая проект межевания территории) в границах улиц Журова, Менделеева, "Искры", Чонгарская в Канавинском районе города Нижнего Новгорода"
(Зарегистрирован 17.03.2025 № 27794-330-007-02-03/17)
Номер опубликования: 5201202503190007
Дата опубликования: 19.03.2025
Страница №8 из 10:
Увеличить