Официальное опубликование правовых актов
ОФИЦИАЛЬНОЕ ОПУБЛИКОВАНИЕ
Приказ Министерства градостроительной деятельности и развития агломераций Нижегородской области от 19.02.2025 № 07-02-03/16
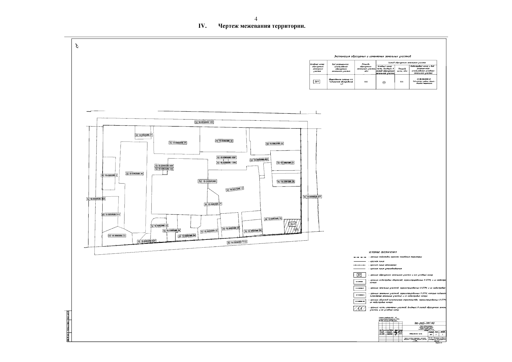
"Об утверждении проекта межевания территории в границах улиц Семашко, Большая Печерская, Нестерова, Минина в Нижегородском районе города Нижнего Новгорода"
(Зарегистрирован 17.03.2025 № 27802-330-007-02-03/16)
Номер опубликования: 5201202503190001
Дата опубликования: 19.03.2025
Страница №6 из 7:
Увеличить