Официальное опубликование правовых актов
ОФИЦИАЛЬНОЕ ОПУБЛИКОВАНИЕ
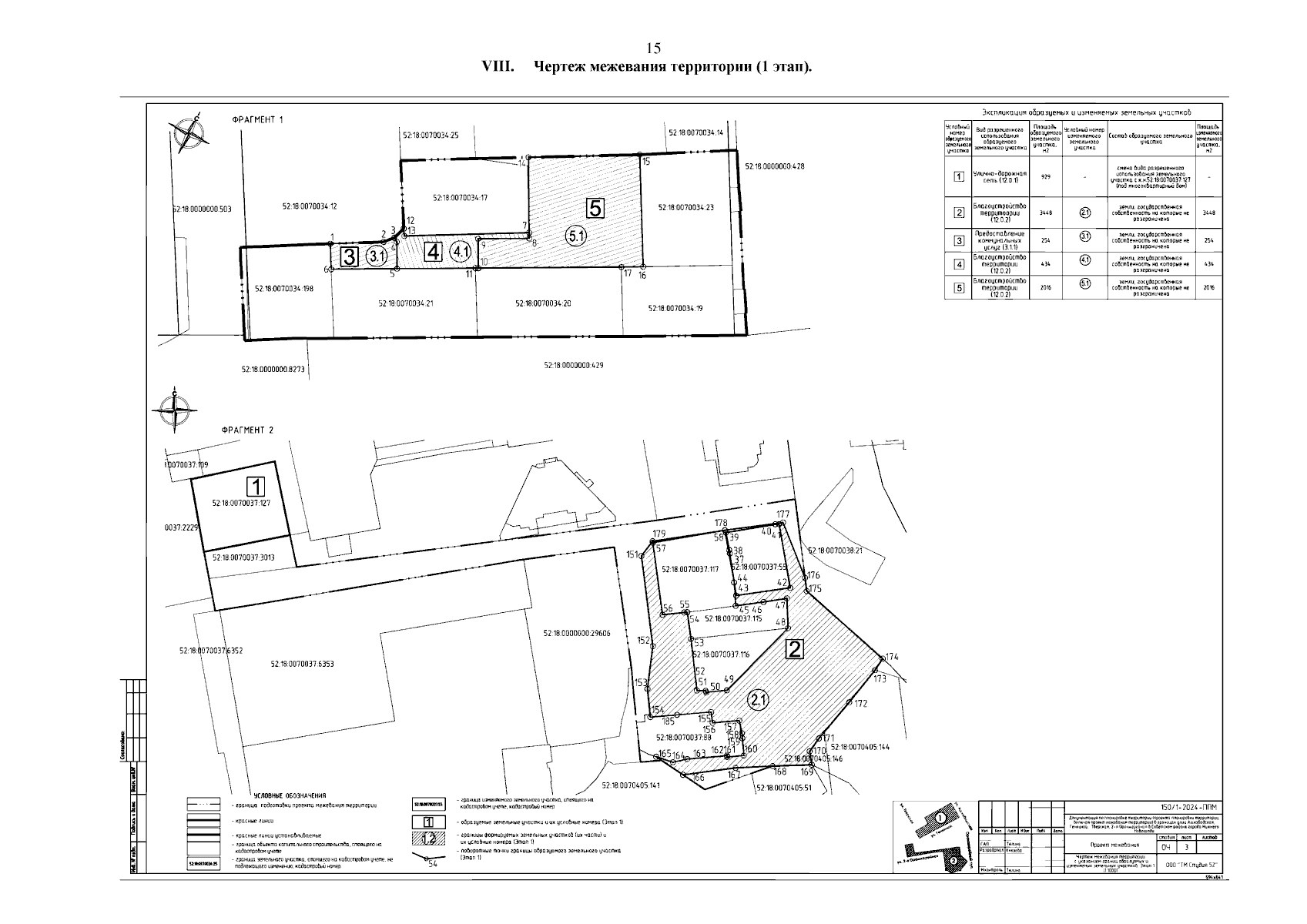
Приказ Министерства градостроительной деятельности и развития агломераций Нижегородской области от 11.02.2025 № 07-02-03/12
"Об утверждении документации по планировке территории (проекта планировки территории, включая проект межевания территории) в границах улиц Ашхабадская, Генкиной, Тверская, 2-я Оранжерейная в Советском районе города Нижнего Новгорода"
(Зарегистрирован 12.03.2025 № 27776-330-007-02-03/12)
Номер опубликования: 5201202503170001
Дата опубликования: 17.03.2025
Страница №17 из 24:
Увеличить