Приказ Министерства градостроительной деятельности и развития агломераций Нижегородской области от 07.02.2025 № 06-01-03/5
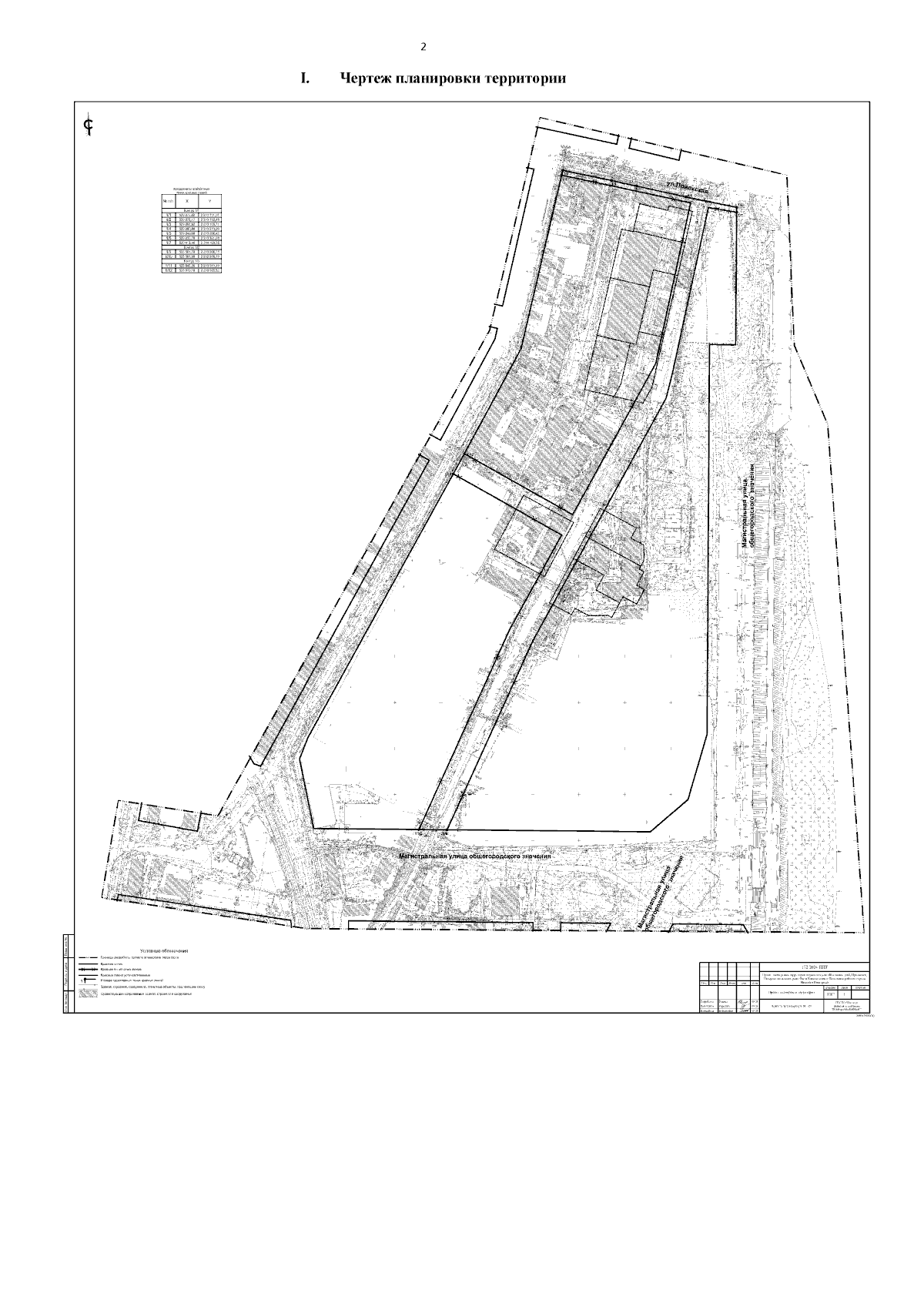
"Об утверждении проекта планировки территории в границах улиц Июльских дней, Приокской, Интернациональной, реки Оки в Канавинском и Ленинском районах города Нижнего Новгорода"
(Зарегистрирован 24.02.2025 № 27669-330-006-01-03/5)
"Об утверждении проекта планировки территории в границах улиц Июльских дней, Приокской, Интернациональной, реки Оки в Канавинском и Ленинском районах города Нижнего Новгорода"
(Зарегистрирован 24.02.2025 № 27669-330-006-01-03/5)
Номер опубликования: 5201202502270001
Дата опубликования:
27.02.2025
