Официальное опубликование правовых актов
ОФИЦИАЛЬНОЕ ОПУБЛИКОВАНИЕ
Приказ Министерства градостроительной деятельности и развития агломераций Нижегородской области от 09.12.2024 № 07-02-03/110
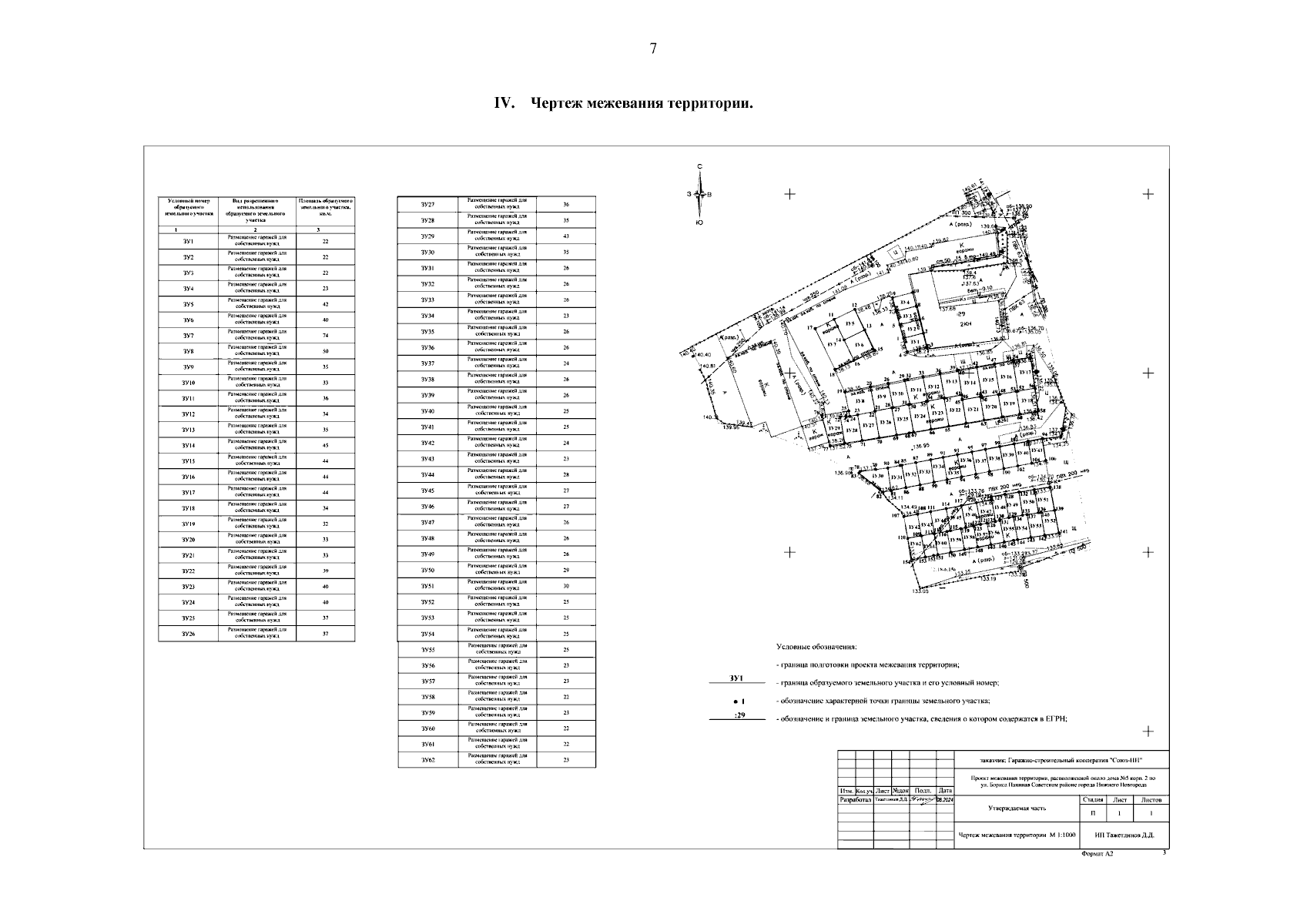
"Об утверждении проекта межевания территории, расположенной около дома № 5 корп. 2 по ул. Бориса Панина в Советском районе города Нижнего Новгорода"
(Зарегистрирован 16.01.2025 № 27415-330-007-02-03/110)
Номер опубликования: 5201202501170005
Дата опубликования: 17.01.2025
Страница №9 из 9:
Увеличить