Официальное опубликование правовых актов
ОФИЦИАЛЬНОЕ ОПУБЛИКОВАНИЕ
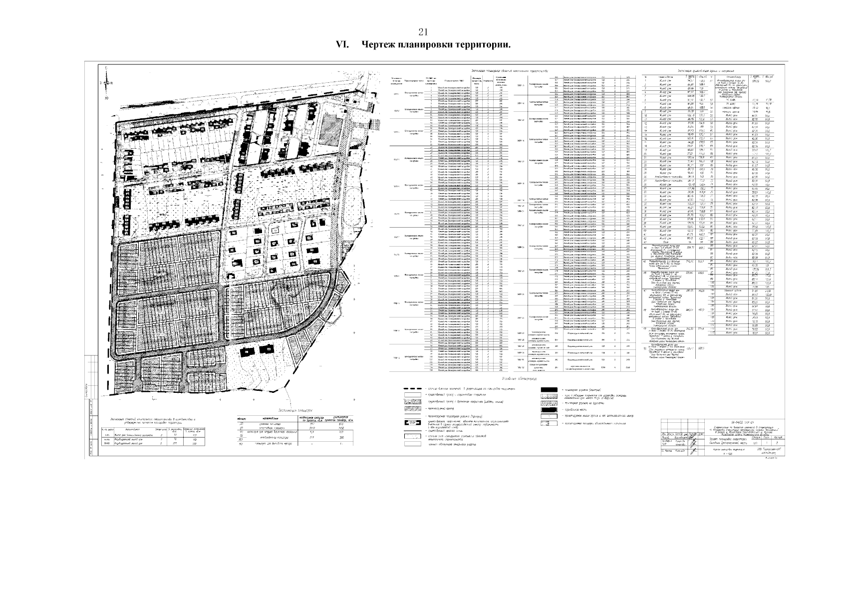
Приказ Министерства градостроительной деятельности и развития агломераций Нижегородской области от 23.10.2024 № 07-02-03/89
"Об утверждении документации по внесению изменений в документацию по планировке территории коттеджного поселка "Фроловский", в районе д.Фроловское (юго-восточнее д. Крутая) Кстовского муниципального округа Нижегородской области"
(Зарегистрирован 21.11.2024 № 26708-330-007-02-03/89)
Номер опубликования: 5201202411220003
Дата опубликования: 22.11.2024
Страница №23 из 25:
Увеличить