Приказ Министерства градостроительной деятельности и развития агломераций Нижегородской области от 05.11.2024 № 07-02-03/97
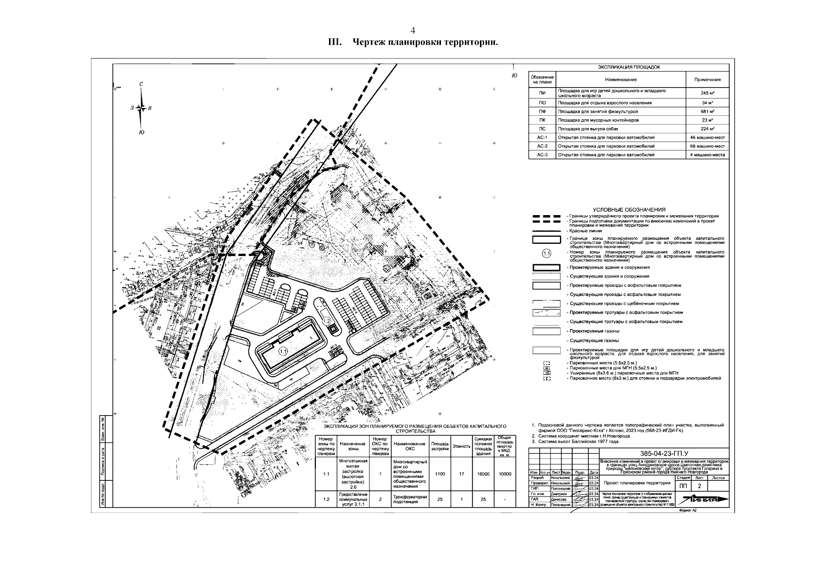
"Об утверждении документации по внесению изменений в проект планировки и межевания территории в границах улиц Анкудиновское шоссе, Цветочная, памятника природы "Щелоковский хутор", дублера проспекта Гагарина в Приокском районе города Нижнего Новгорода"
(Зарегистрирован 11.11.2024 № 26618-330-007-02-03/97)
"Об утверждении документации по внесению изменений в проект планировки и межевания территории в границах улиц Анкудиновское шоссе, Цветочная, памятника природы "Щелоковский хутор", дублера проспекта Гагарина в Приокском районе города Нижнего Новгорода"
(Зарегистрирован 11.11.2024 № 26618-330-007-02-03/97)
Номер опубликования: 5201202411130010
Дата опубликования:
13.11.2024
