Приказ Министерства градостроительной деятельности и развития агломераций Нижегородской области от 20.08.2024 № 07-02-03/71
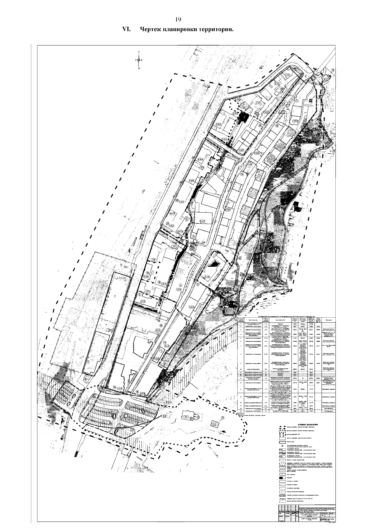
"Об утверждении документации по планировке территории (проекта планировки территории, включая проект межевания территории) в границах улицы Черниговская, переулка Мельничный, улицы Гаршина и площади Казанская в Нижегородском районе города Нижнего Новгорода"
(Зарегистрирован 02.09.2024 № 26250-330-007-02-03/71)
"Об утверждении документации по планировке территории (проекта планировки территории, включая проект межевания территории) в границах улицы Черниговская, переулка Мельничный, улицы Гаршина и площади Казанская в Нижегородском районе города Нижнего Новгорода"
(Зарегистрирован 02.09.2024 № 26250-330-007-02-03/71)
Номер опубликования: 5201202409050004
Дата опубликования:
05.09.2024
