Официальное опубликование правовых актов
ОФИЦИАЛЬНОЕ ОПУБЛИКОВАНИЕ
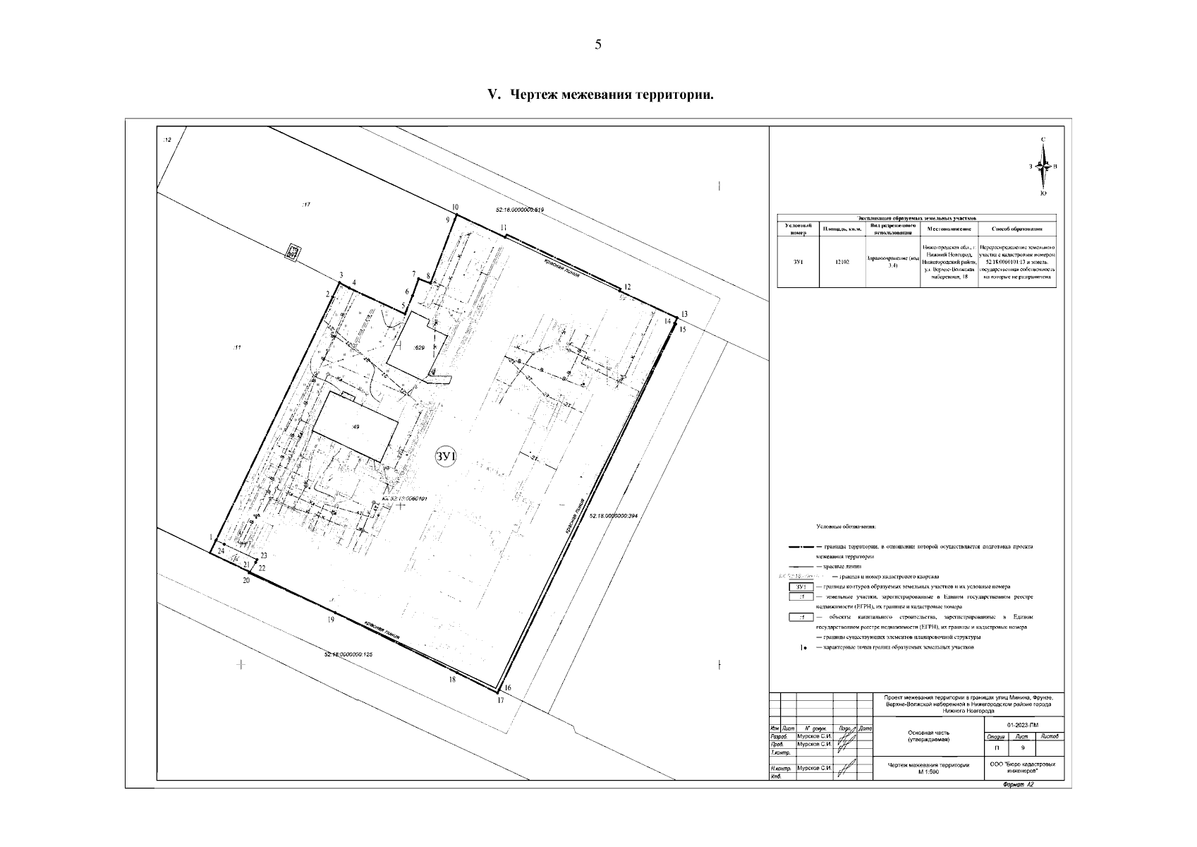
Приказ Министерства градостроительной деятельности и развития агломераций Нижегородской области от 28.06.2024 № 07-02-03/57
"Об утверждении проекта межевания территории в границах улиц Минина, Фрунзе, Верхне-Волжской набережной в Нижегородском районе города Нижнего Новгорода"
(Зарегистрирован 18.07.2024 № 25956-330-007-02-03/57)
Номер опубликования: 5201202407190009
Дата опубликования: 19.07.2024
Страница №7 из 7:
Увеличить