Приказ Министерства градостроительной деятельности и развития агломераций Нижегородской области от 19.06.2024 № 07-02-03/52
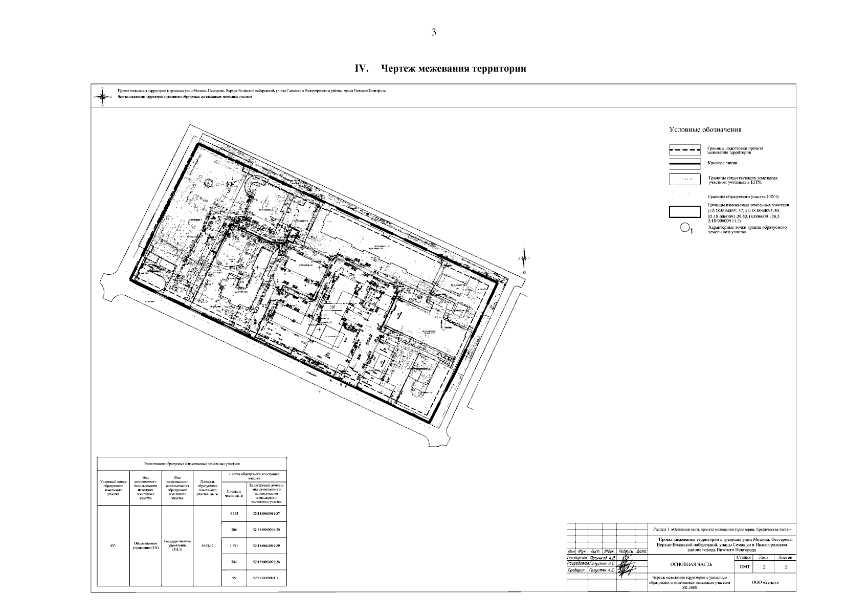
"Об утверждении проекта межевания территории в границах улиц Минина, Нестерова, Верхне-Волжской набережной, улицы Семашко в Нижегородском районе города Нижнего Новгорода"
(Зарегистрирован 18.07.2024 № 25952-330-007-02-03/52)
"Об утверждении проекта межевания территории в границах улиц Минина, Нестерова, Верхне-Волжской набережной, улицы Семашко в Нижегородском районе города Нижнего Новгорода"
(Зарегистрирован 18.07.2024 № 25952-330-007-02-03/52)
Номер опубликования: 5201202407190005
Дата опубликования:
19.07.2024
