Официальное опубликование правовых актов
ОФИЦИАЛЬНОЕ ОПУБЛИКОВАНИЕ
Приказ Министерства градостроительной деятельности и развития агломераций Нижегородской области от 11.06.2024 № 07-02-03/51
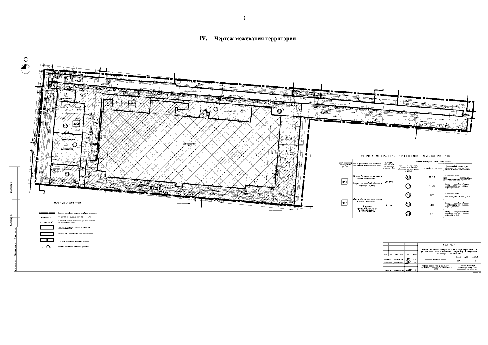
"Об утверждении проекта межевания территории по улице Лермонтова, в районе дома № 20 в городском округе город Дзержинск Нижегородской области"
(Зарегистрирован 08.07.2024 № 25846-330-007-02-03/51)
Номер опубликования: 5201202407110001
Дата опубликования: 11.07.2024
Страница №5 из 6:
Увеличить