Официальное опубликование правовых актов
ОФИЦИАЛЬНОЕ ОПУБЛИКОВАНИЕ
Приказ Министерства градостроительной деятельности и развития агломераций Нижегородской области от 05.06.2024 № 07-02-03/48
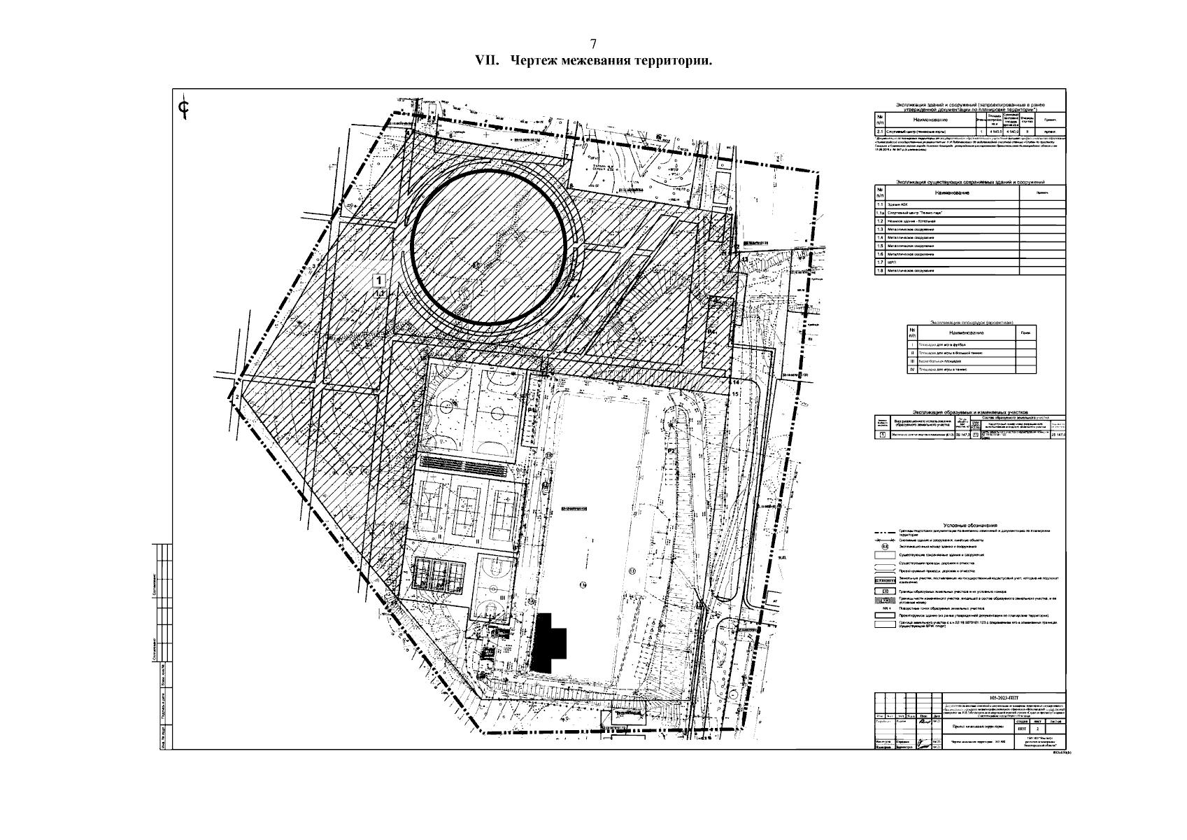
"Об утверждении документации по внесению изменений в документацию по планировке территории от государственного образовательного учреждения высшего профессионального образования "Нижегородский государственный университет им. Н.И.Лобачевского" до водопроводной очистной станции "Слуда" по проспекту Гагарина в Советском районе города Нижнего Новгорода"
(Зарегистрирован 27.06.2024 № 25784-330-007-02-03/48)
Номер опубликования: 5201202406280006
Дата опубликования: 28.06.2024
Страница №9 из 9:
Увеличить