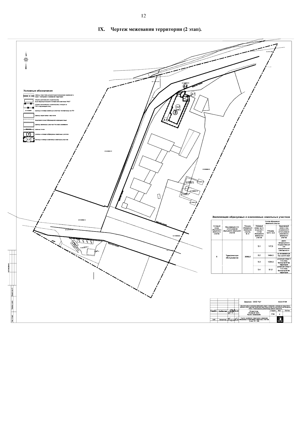
Приказ Министерства градостроительной деятельности и развития агломераций Нижегородской области от 07.05.2024 № 07-02-03/39
"Об утверждении документации по внесению изменений в проект планировки и межевания территории в границах улиц Родионова, Казанский съезд, Лысогорская, включая полуостров Печёрские пески, в Нижегородском районе города Нижнего Новгорода"
(Зарегистрирован 27.05.2024 № 25583-330-007-02-03/39)
"Об утверждении документации по внесению изменений в проект планировки и межевания территории в границах улиц Родионова, Казанский съезд, Лысогорская, включая полуостров Печёрские пески, в Нижегородском районе города Нижнего Новгорода"
(Зарегистрирован 27.05.2024 № 25583-330-007-02-03/39)
Номер опубликования: 5201202405300003
Дата опубликования:
30.05.2024
