Официальное опубликование правовых актов
ОФИЦИАЛЬНОЕ ОПУБЛИКОВАНИЕ
Приказ Министерства градостроительной деятельности и развития агломераций Нижегородской области от 29.03.2024 № 07-02-03/27
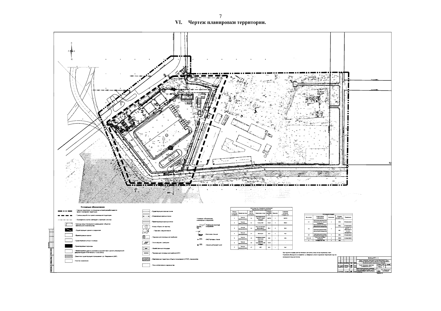
"Об утверждении проекта планировки территории по улице Федосеенко и проекта межевания территории в районе дома 63 по улице Федосеенко в Московском районе города Нижнего Новгорода"
(Зарегистрирован 06.05.2024 № 25507-330-007-02-03/27)
Номер опубликования: 5201202405080001
Дата опубликования: 08.05.2024
Страница №9 из 11:
Увеличить