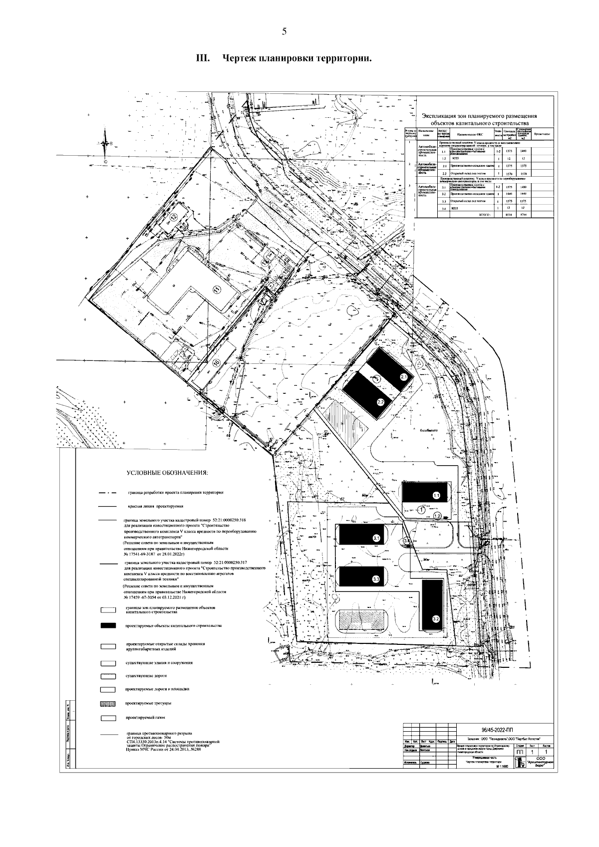
Приказ Министерства градостроительной деятельности и развития агломераций Нижегородской области от 26.03.2024 № 07-02-03/26
"Об утверждении проекта планировки территории по Игумновскому шоссе в городском округе город Дзержинск Нижегородской области"
(Зарегистрирован 11.04.2024 № 25406-330-007-02-03/26)
"Об утверждении проекта планировки территории по Игумновскому шоссе в городском округе город Дзержинск Нижегородской области"
(Зарегистрирован 11.04.2024 № 25406-330-007-02-03/26)
Номер опубликования: 5201202404130002
Дата опубликования:
13.04.2024
