Официальное опубликование правовых актов
ОФИЦИАЛЬНОЕ ОПУБЛИКОВАНИЕ
Приказ Министерства градостроительной деятельности и развития агломераций Нижегородской области от 26.02.2024 № 07-02-03/14
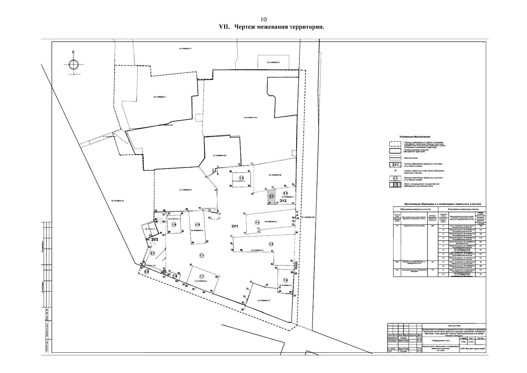
"Об утверждении документации по внесению изменений в проект планировки и межевания территории южной части квартала в границах улиц Малая Покровская, Заломова, Нижегородская, Гоголя в Нижегородском районе города Нижнего Новгорода"
(Зарегистрирован 27.03.2024 № 25305-330-007-02-03/14)
Номер опубликования: 5201202403290003
Дата опубликования: 29.03.2024
Страница №12 из 13:
Увеличить