Официальное опубликование правовых актов
ОФИЦИАЛЬНОЕ ОПУБЛИКОВАНИЕ
Приказ Министерства градостроительной деятельности и развития агломераций Нижегородской области от 22.11.2023 № 07-02-03/111
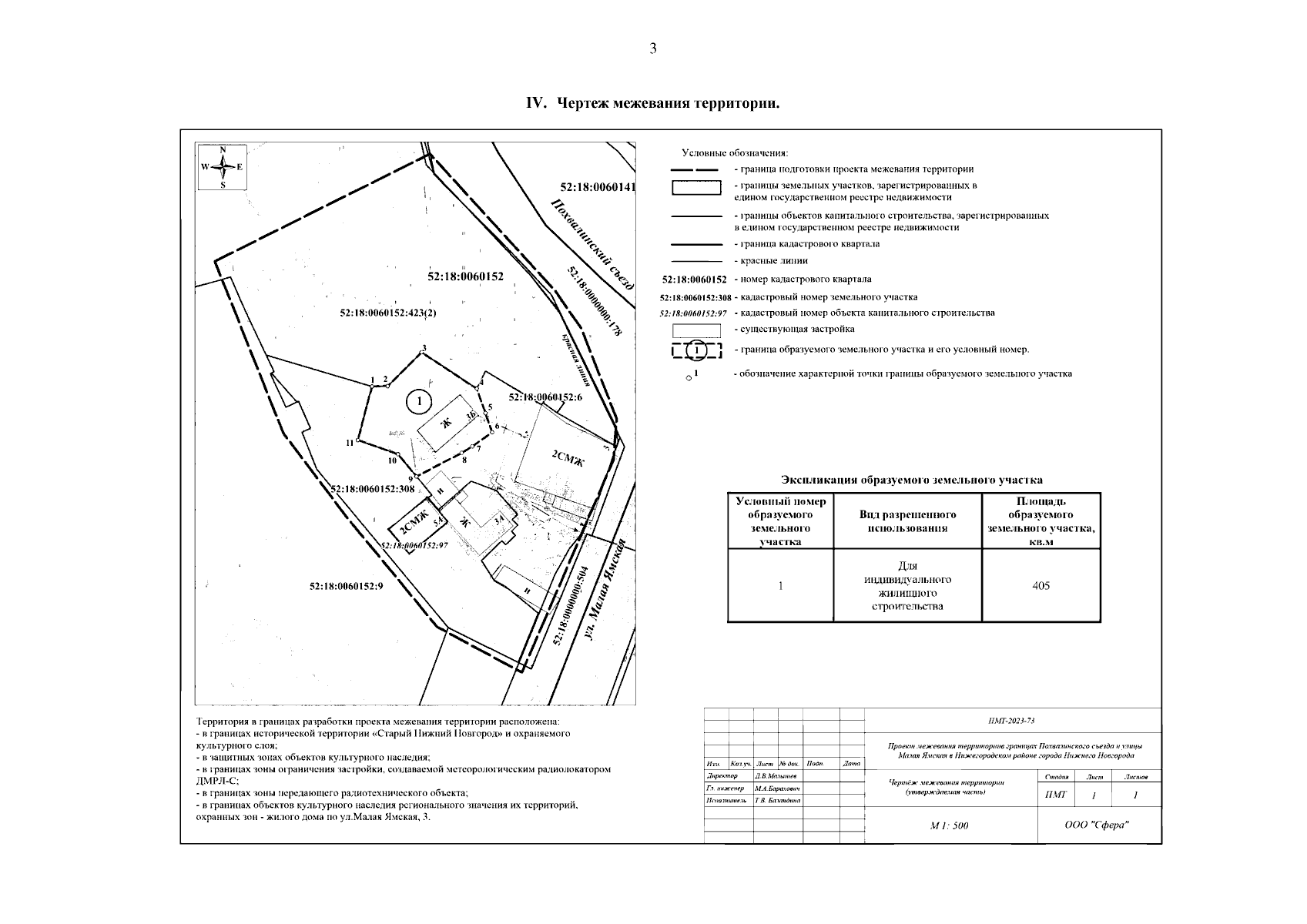
"Об утверждении проекта межевания территории в границах Похвалинского съезда и улицы Малая Ямская в Нижегородском районе города Нижнего Новгорода"
(Зарегистрирован 22.12.2023 № 24707-330-007-02-03/111)
Номер опубликования: 5201202312270004
Дата опубликования: 27.12.2023
Страница №5 из 5:
Увеличить