Приказ Министерства градостроительной деятельности и развития агломераций Нижегородской области от 21.11.2023 № 07-02-03/110
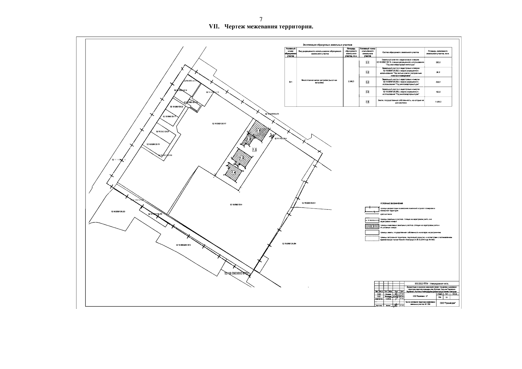
"Об утверждении документации по внесению изменений в проект планировки и межевания части территории квартала в границах улиц Крупской, Большая Покровская, Воровского, Костина в Нижегородском районе города Нижнего Новгорода"
(Зарегистрирован 22.12.2023 № 24706-330-007-02-03/110)
"Об утверждении документации по внесению изменений в проект планировки и межевания части территории квартала в границах улиц Крупской, Большая Покровская, Воровского, Костина в Нижегородском районе города Нижнего Новгорода"
(Зарегистрирован 22.12.2023 № 24706-330-007-02-03/110)
Номер опубликования: 5201202312270003
Дата опубликования:
27.12.2023
