Официальное опубликование правовых актов
ОФИЦИАЛЬНОЕ ОПУБЛИКОВАНИЕ
Приказ Министерства градостроительной деятельности и развития агломераций Нижегородской области от 16.08.2023 № 07-02-03/83
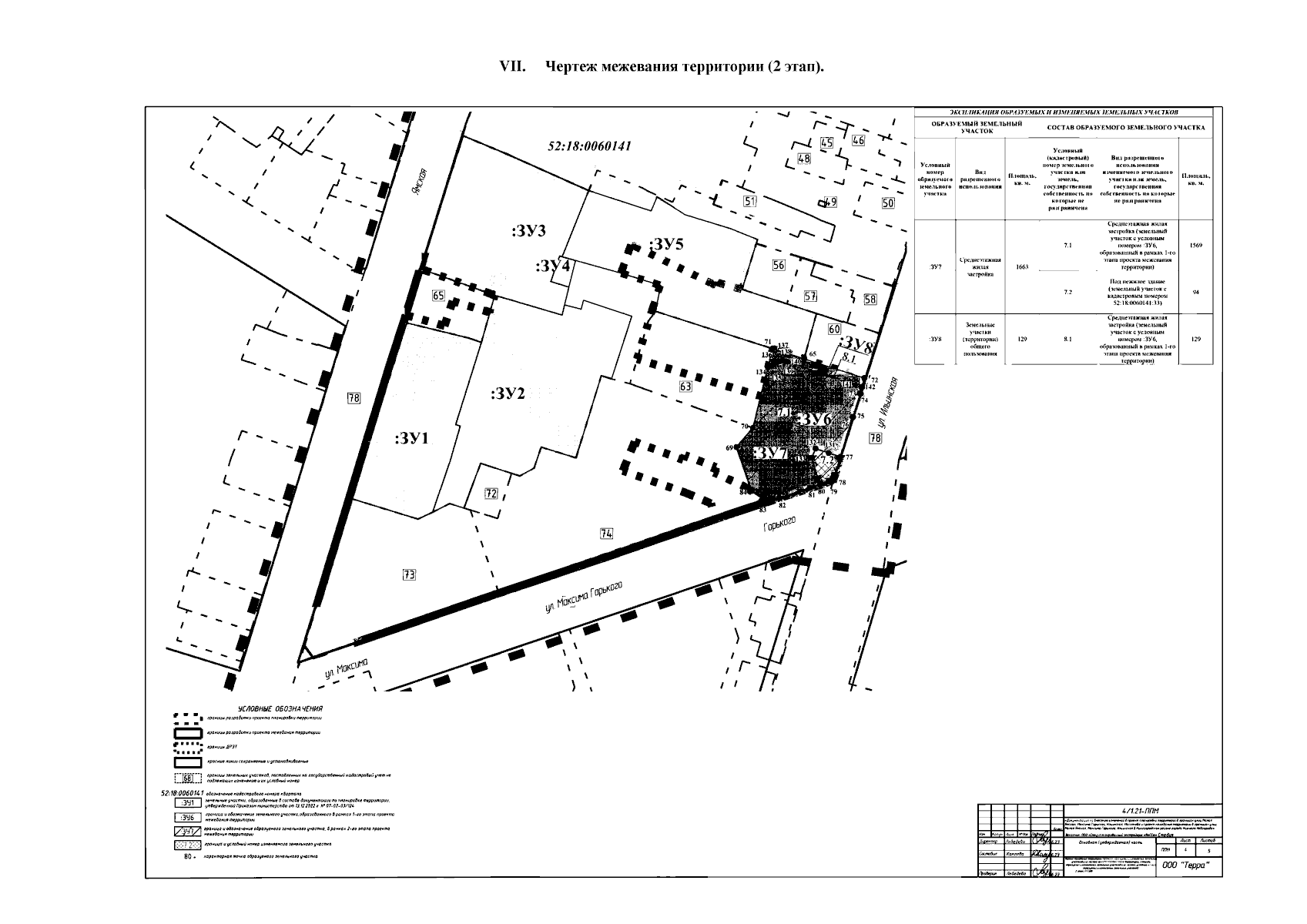
"Об утверждении документации по внесению изменений в проект планировки территории в границах улиц Малая Ямская, Максима Горького, Ильинская, Маслякова и проект межевания территории в границах улиц Малая Ямская, Максима Горького, Ильинская в Нижегородском районе города Нижнего Новгорода"
(Зарегистрирован 04.09.2023 № 23594-330-007-02-03/83)
Номер опубликования: 5201202309070001
Дата опубликования: 07.09.2023
Страница №8 из 9:
Увеличить