Приказ Министерства градостроительной деятельности и развития агломераций Нижегородской области от 16.06.2023 № 07-02-03/61
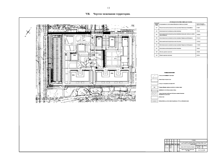
"Об утверждении проекта планировки территории в границах улиц Пермякова, Дворовая, Львовская и проекта межевания территории по улице Львовская в Автозаводском районе города Нижнего Новгорода"
(Зарегистрирован 17.07.2023 № 23358-330-007-02-03/61)
"Об утверждении проекта планировки территории в границах улиц Пермякова, Дворовая, Львовская и проекта межевания территории по улице Львовская в Автозаводском районе города Нижнего Новгорода"
(Зарегистрирован 17.07.2023 № 23358-330-007-02-03/61)
Номер опубликования: 5201202307200015
Дата опубликования:
20.07.2023
