Официальное опубликование правовых актов
ОФИЦИАЛЬНОЕ ОПУБЛИКОВАНИЕ
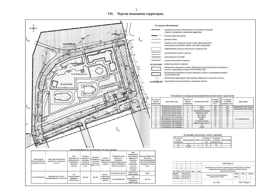
Приказ Министерства градостроительной деятельности и развития агломераций Нижегородской области от 21.04.2023 № 07-02-03/42
"Об утверждении документации по внесению изменений в проект планировки и межевания территории жилого района "Западный" в городе Богородск Нижегородской области"
(Зарегистрирован 04.05.2023 № 22974-330-007-02-03/42)
Номер опубликования: 5201202305050001
Дата опубликования: 05.05.2023
Страница №9 из 9: