Приказ Министерства градостроительной деятельности и развития агломераций Нижегородской области от 05.04.2023 № 07-02-03/38
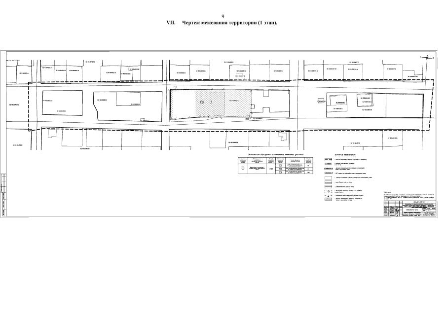
"Об утверждении документации по планировке территории (проекта планировки территории, включая проект межевания территории) в границах улиц 12 линия, 13 линия, 2 тупик в поселке Новое Доскино в Автозаводском районе города Нижнего Новгорода"
(Зарегистрирован 25.04.2023 № 22932-330-007-02-03/38)
"Об утверждении документации по планировке территории (проекта планировки территории, включая проект межевания территории) в границах улиц 12 линия, 13 линия, 2 тупик в поселке Новое Доскино в Автозаводском районе города Нижнего Новгорода"
(Зарегистрирован 25.04.2023 № 22932-330-007-02-03/38)
Номер опубликования: 5201202304270008
Дата опубликования:
27.04.2023
