Официальное опубликование правовых актов
ОФИЦИАЛЬНОЕ ОПУБЛИКОВАНИЕ
Приказ Министерства градостроительной деятельности и развития агломераций Нижегородской области от 21.02.2023 № 07-02-03/9
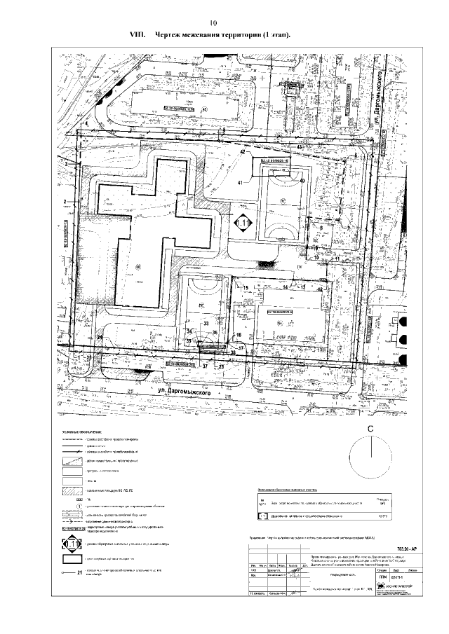
"Об утверждении проекта планировки территории в границах улиц Молитовская, Даргомыжского, площади Комсомольская и проекта межевания территории в районе дома № 17 по улице Даргомыжского в Ленинском районе города Нижнего Новгорода"
(Зарегистрирован 21.03.2023 № 22713-330-007-02-03/9)
Номер опубликования: 5201202303220013
Дата опубликования: 22.03.2023
Страница №12 из 14:
Увеличить